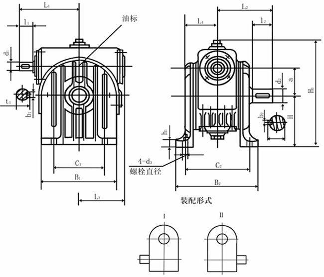
CWU125—CWU500型減速器外形和安裝尺寸
|
型號CWI |
尺寸 |
|
a |
B1 |
B2 |
B3 |
C1 |
C2 |
i≤12.5 |
i≥16 |
|
d1 |
I |
b1 |
t1 |
L1 |
d1 |
I1 |
b1 |
t1 |
L1 |
|
100 |
100 |
225 |
240 |
265 |
190 |
200 |
28js6 |
42 |
8 |
31 |
182 |
24js6 |
36 |
8 |
27 |
176 |
|
125 |
125 |
260 |
250 |
310 |
220 |
205 |
32k6 |
58 |
10 |
35 |
218 |
28js6 |
42 |
8 |
31 |
202 |
|
140 |
140 |
285 |
275 |
345 |
230 |
225 |
38k6 |
58 |
10 |
41 |
228 |
28js6 |
42 |
8 |
31 |
212 |
|
160 |
160 |
325 |
300 |
385 |
230 |
250 |
42k6 |
82 |
12 |
45 |
277 |
32k6 |
58 |
10 |
35 |
253 |
|
180 |
180 |
350 |
320 |
420 |
260 |
270 |
42k6 |
82 |
12 |
45 |
292 |
32k6 |
58 |
10 |
35 |
268 |
|
200 |
200 |
400 |
350 |
465 |
280 |
300 |
48k6 |
82 |
14 |
51.5 |
324 |
38k6 |
58 |
10 |
41 |
300 |
|
225 |
225 |
440 |
380 |
505 |
325 |
325 |
48k6 |
82 |
14 |
51.5 |
342 |
38k6 |
58 |
10 |
41 |
318 |
|
250 |
250 |
510 |
410 |
575 |
370 |
350 |
55k6 |
82 |
16 |
59 |
380 |
42k6 |
82 |
12 |
45 |
380 |
|
280 |
280 |
570 |
460 |
645 |
420 |
400 |
60m6 |
105 |
18 |
64 |
430 |
48k6 |
82 |
14 |
51.5 |
407 |
|
315 |
315 |
640 |
530 |
715 |
470 |
445 |
65m6 |
105 |
18 |
69 |
470 |
48k6 |
82 |
14 |
51.5 |
447 |
|
355 |
355 |
730 |
580 |
805 |
540 |
490 |
70m6 |
105 |
20 |
74.5 |
515 |
55k6 |
82 |
16 |
59 |
492 |
|
400 |
400 |
790 |
620 |
880 |
620 |
530 |
75m6 |
105 |
20 |
79.5 |
545 |
60m6 |
105 |
18 |
64 |
545 |
|
450 |
450 |
885 |
680 |
985 |
700 |
580 |
80m6 |
130 |
22 |
85 |
625 |
65m6 |
105 |
18 |
69 |
600 |
|
500 |
500 |
1015 |
750 |
1115 |
760 |
640 |
90m6 |
130 |
25 |
95 |
680 |
70m6 |
105 |
20 |
74.5 |
655 |
|
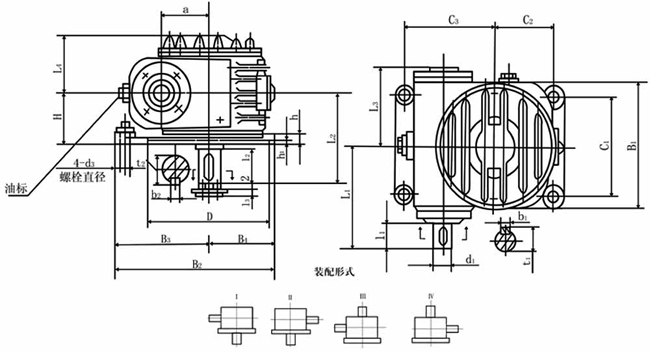
型號CWU |
尺寸 |
|
d2 |
I2 |
b2 |
t2 |
L2 |
L3 |
L4 |
L5 |
L6 |
h |
H |
H1 |
d3 |
質量(kg)(不包括油重) |
|
100 |
48k6 |
82 |
14 |
51.5 |
212 |
180 |
121 |
133 |
139 |
25 |
112 |
340 |
M12 |
60 |
|
125 |
55K6 |
82 |
16 |
59 |
222 |
202 |
133 |
153 |
147 |
30 |
125 |
408 |
M16 |
92 |
|
140 |
60m6 |
105 |
18 |
64 |
260 |
220 |
144 |
166 |
160 |
30 |
140 |
445 |
M16 |
120 |
|
160 |
65m6 |
105 |
18 |
69 |
270 |
245 |
156 |
186 |
172 |
35 |
160 |
510 |
M16 |
145 |
|
180 |
75m6 |
105 |
20 |
79.5 |
290 |
260 |
173 |
200 |
182 |
35 |
180 |
560 |
M20 |
200 |
|
200 |
80m6 |
130 |
22 |
85 |
325 |
295 |
180 |
235 |
197 |
40 |
200 |
650 |
M20 |
260 |
|
225 |
90m6 |
130 |
25 |
95 |
340 |
320 |
193 |
247 |
212 |
40 |
225 |
730 |
M20 |
320 |
|
250 |
100m6 |
165 |
28 |
106 |
385 |
360 |
209 |
285 |
228 |
45 |
225 |
785 |
M24 |
395 |
|
280 |
110m6 |
165 |
28 |
116 |
405 |
390 |
225 |
312 |
253 |
50 |
250 |
885 |
M24 |
530 |
|
315 |
120m6 |
165 |
32 |
127 |
420 |
430 |
242 |
352 |
289 |
50 |
280 |
980 |
M30 |
700 |
|
355 |
130m6 |
200 |
32 |
137 |
470 |
480 |
255 |
397 |
315 |
55 |
300 |
1085 |
M30 |
910 |
|
400 |
150m6 |
200 |
36 |
158 |
490 |
515 |
277 |
429 |
335 |
60 |
315 |
1175 |
M30 |
1200 |
|
450 |
170m6 |
240 |
40 |
179 |
560 |
575 |
299 |
484 |
367 |
65 |
355 |
1310 |
M36 |
1660 |
|
500 |
190m6 |
280 |
45 |
200 |
640 |
655 |
343 |
549 |
403 |
80 |
400 |
1450 |
M36 |
2330 |
表8-118CWS(蝸桿在側)減速CWS63~99的型式及主要尺寸(mm)
|
型號CWS\尺寸 |
a |
B1 |
B2 |
B3 |
B4 |
C1 |
C2 |
C3 |
D |
h |
h1 |
i≤12.5 |
|
d1 |
I1 |
b1 |
t1 |
L1 |
|
63 |
63 |
155 |
245 |
140 |
105 |
125 |
90 |
125 |
190 |
23 |
5 |
19js6 |
28 |
6 |
21.5 |
128 |
|
80 |
80 |
180 |
270 |
160 |
110 |
150 |
95 |
145 |
210 |
23 |
5 |
24js6 |
36 |
8 |
27 |
151 |
|
99 |
100 |
220 |
325 |
200 |
125 |
190 |
110 |
185 |
240 |
23 |
5 |
28js6 |
42 |
8 |
31 |
182 |
|
型號CWS\尺寸 |
i≥16 |
d2 |
I2 |
b2 |
t2 |
L2 |
L3 |
L4 |
H |
d3 |
質量kg
(不包括油重) |
|
d1 |
I1 |
b1 |
t1 |
L1 |
|
63 |
19js6 |
28 |
6 |
21.5 |
128 |
32k6 |
58 |
10 |
35 |
135 |
97 |
70 |
75 |
M12 |
19 |
|
80 |
24js6 |
36 |
8 |
27 |
151 |
38k6 |
58 |
10 |
41 |
143 |
110 |
81 |
80 |
M12 |
28 |
|
99 |
24js6 |
36 |
8 |
27 |
176 |
42k6 |
82 |
12 |
45 |
182 |
130 |
95 |
95 |
M12 |
42.5 |
表8-119CWS(蝸桿在側)減速器,CWS100~500的型式及主要尺寸(mm)

|
型號CWS\尺寸 |
a |
D |
D1 |
D2 |
L3 |
L4 |
L5 |
h |
h1 |
H |
i≤12.5 |
|
d1 |
I1 |
b1 |
t1 |
L1 |
|
100 |
100 |
190 |
240 |
270 |
180 |
121 |
115 |
28 |
5 |
132 |
28js6 |
42 |
8 |
31 |
182 |
|
125 |
125 |
230 |
280 |
320 |
202 |
134 |
125 |
32 |
8 |
132 |
32k6 |
58 |
1, 0 |
35 |
218 |
|
160 |
160 |
300 |
360 |
400 |
245 |
157 |
142 |
32 |
8 |
160 |
42k6 |
82 |
12 |
45 |
277 |
|
200 |
200 |
370 |
435 |
480 |
295 |
181 |
180 |
38 |
8 |
190 |
48k6 |
82 |
14 |
51.5 |
324 |
|
250 |
250 |
470 |
540 |
600 |
360 |
210 |
210 |
40 |
8 |
212 |
55k6 |
82 |
16 |
59 |
380 |
|
280 |
280 |
550 |
640 |
700 |
390 |
226 |
215 |
45 |
8 |
225 |
60m6 |
105 |
18 |
64 |
430 |
|
315 |
315 |
605 |
700 |
760 |
430 |
243 |
235 |
50 |
10 |
250 |
65m6 |
105 |
18 |
69 |
470 |
|
355 |
355 |
700 |
805 |
880 |
480 |
256 |
235 |
55 |
10 |
265 |
70m6 |
105 |
20 |
74.5 |
515 |
|
400 |
400 |
765 |
875 |
950 |
515 |
278 |
247 |
60 |
10 |
265 |
75m6 |
105 |
20 |
79.5 |
545 |
|
450 |
450 |
875 |
990 |
1070 |
565 |
300 |
275 |
65 |
10 |
315 |
80m6 |
130 |
22 |
85 |
625 |
|
500 |
500 |
1000 |
1100 |
1180 |
655 |
344 |
300 |
75 |
10 |
375 |
90m6 |
130 |
25 |
95 |
680 |
|
型號CWS\尺寸 |
i≥16 |
d2 |
I2 |
b2 |
t2 |
L2 |
I3 |
地腳螺栓 |
質量kg
(不包括油重) |
|
d1 |
I1 |
b1 |
t1 |
L1 |
d3 |
n |
|
100 |
24js6 |
36 |
8 |
27 |
176 |
48k6 |
82 |
14 |
51.5 |
212 |
11 |
M12 |
4 |
70 |
|
125 |
28js6 |
42 |
8 |
31 |
202 |
55k6 |
82 |
16 |
59 |
222 |
14 |
M12 |
4 |
95 |
|
160 |
32k6 |
58 |
10 |
35 |
253 |
65m6 |
105 |
18 |
69 |
270 |
15 |
M16 |
4 |
150 |
|
200 |
38k6 |
58 |
10 |
41 |
300 |
80m6 |
130 |
22 |
85 |
325 |
17 |
M16 |
4 |
270 |
|
250 |
42k6 |
82 |
12 |
45 |
380 |
100m6 |
165 |
28 |
106 |
385 |
17 |
M20 |
4 |
410 |
|
280 |
48k6 |
82 |
14 |
51.5 |
407 |
110m6 |
165 |
28 |
116 |
405 |
17 |
M24 |
4 |
550 |
|
315 |
48k6 |
82 |
14 |
51.5 |
447 |
120m6 |
165 |
32 |
127 |
420 |
17 |
M24 |
4 |
750 |
|
355 |
55k6 |
82 |
16 |
59 |
492 |
130m6 |
200 |
32 |
137 |
470 |
17 |
M30 |
4 |
930 |
|
400 |
60m6 |
105 |
18 |
64 |
545 |
150m6 |
200 |
36 |
158 |
490 |
24 |
M30 |
4 |
1200 |
|
450 |
65m6 |
105 |
18 |
69 |
600 |
170m6 |
240 |
40 |
179 |
560 |
24 |
M36 |
4 |
1650 |
|
500 |
70m6 |
105 |
20 |
74.5 |
655 |
190m6 |
280 |
45 |
200 |
640 |
24 |
M30 |
6 |
2190 |
表8-120CWO型(蝸桿在上)減速器,CWO63~99的型式及主要尺寸(mm)
|
型號CWO\尺寸 |
a |
B1 |
B2 |
C1 |
C2 |
h |
H |
H1 |
h1 |
i≤12.5 |
|
d1 |
I1 |
b1 |
t1 |
L1 |
|
63 |
63 |
148 |
180 |
115 |
150 |
12 |
117 |
245 |
M12 |
19js6 |
28 |
6 |
21.5 |
128 |
|
80 |
80 |
175 |
200 |
140 |
170 |
15 |
145 |
296 |
M12 |
24js6 |
36 |
8 |
27 |
151 |
|
99 |
100 |
218 |
230 |
175 |
190 |
15 |
180 |
365 |
M12 |
28js6 |
42 |
8 |
31 |
182 |
|
型號CWO\尺寸 |
i≥16 |
d2 |
I2 |
b2 |
t2 |
L2 |
L3 |
L4 |
質量(kg)
(不包括油重) |
|
d1 |
I1 |
b1 |
t1 |
L1 |
|
63 |
19js6 |
28 |
6 |
21.5 |
128 |
32k6 |
58 |
10 |
35 |
135 |
97 |
70 |
19.5 |
|
80 |
24js6 |
36 |
8 |
27 |
151 |
38k6 |
58 |
10 |
41 |
143 |
110 |
81 |
28.5 |
|
99 |
24js6 |
36 |
8 |
27 |
176 |
42k6 |
82 |
12 |
45 |
182 |
130 |
95 |
43 |
表8-121CWO型(蝸桿在上)減速器CWO100~250的型式及主要尺寸(mm)

|
型號CWO\尺寸 |
a |
B1 |
B2 |
B3 |
C1 |
C2 |
h |
H |
H1 |
d2 |
i≤12.5 |
|
d1 |
I1 |
b1 |
t1 |
L1 |
|
100 |
100 |
225 |
240 |
265 |
190 |
200 |
25 |
150 |
380 |
M12 |
28js6 |
42 |
8 |
31 |
182 |
|
125 |
125 |
260 |
250 |
310 |
220 |
205 |
30 |
155 |
410 |
M16 |
32k6 |
58 |
10 |
35 |
218 |
|
140 |
140 |
285 |
275 |
345 |
230 |
225 |
30 |
195 |
485 |
M16 |
38k6 |
58 |
10 |
41 |
228 |
|
160 |
160 |
325 |
300 |
385 |
230 |
250 |
35 |
195 |
510 |
M16 |
42k6 |
82 |
12 |
45 |
277 |
|
180 |
180 |
350 |
320 |
420 |
260 |
270 |
35 |
220 |
600 |
M20 |
42k6 |
82 |
12 |
45 |
292 |
|
200 |
200 |
400 |
350 |
465 |
280 |
300 |
40 |
250 |
655 |
M20 |
48k6 |
82 |
14 |
51.5 |
324 |
|
225 |
225 |
440 |
380 |
505 |
325 |
325 |
40 |
275 |
700 |
M20 |
48k6 |
82 |
14 |
51.5 |
342 |
|
250 |
250 |
510 |
410 |
575 |
370 |
350 |
45 |
310 |
820 |
M24 |
55k6 |
82 |
16 |
59 |
380 |
|
型號CWO\尺寸 |
i≥16 |
d2 |
I2 |
b2 |
t2 |
L2 |
L3 |
L4 |
L5 |
重量(kg)
(不包括油重) |
|
d1 |
I1 |
b1 |
t1 |
L1 |
|
100 |
24js6 |
36 |
8 |
27 |
176 |
48k6 |
82 |
14 |
51.5 |
212 |
180 |
121 |
133 |
65 |
|
125 |
28js6 |
42 |
8 |
31 |
202 |
55k6 |
82 |
16 |
59 |
222 |
202 |
133 |
153 |
98 |
|
140 |
28js6 |
42 |
8 |
31 |
212 |
60m6 |
105 |
18 |
64 |
260 |
220 |
144 |
166 |
110 |
|
160 |
32k6 |
58 |
10 |
35 |
253 |
65m6 |
105 |
18 |
69 |
270 |
245 |
156 |
186 |
150 |
|
180 |
32k6 |
58 |
10 |
35 |
268 |
75m6 |
105 |
20 |
79.5 |
290 |
260 |
173 |
200 |
210 |
|
200 |
38k6 |
58 |
10 |
41 |
300 |
80m6 |
130 |
22 |
85 |
325 |
295 |
188 |
235 |
270 |
|
225 |
38k6 |
58 |
10 |
41 |
318 |
90m6 |
130 |
25 |
95 |
340 |
320 |
193 |
247 |
335 |
|
250 |
42k6 |
82 |
12 |
45 |
380 |
100m6 |
165 |
28 |
106 |
385 |
360 |
210 |
285 |
410 |
標記示例: