圓柱齒輪 檢驗實施規范
輪齒同側齒面的檢驗
1范圍
本指導性技術文件是漸開線圓柱齒輪同側齒面的檢驗實施規范,即齒距、齒廓、螺旋線偏差和切向綜合偏差的檢驗實施規范。
作為標準GB/T10095.1的補充,它提供了齒輪檢測方法和測量結果分析方面的建議。
許多使用的名詞在GB/T10095.1中解釋,其他的在它們出現的地方或在第3章中解釋。
2引用標準
下列標準所包含的條文,通過在本指導性技術文件中引用而構成為本指導性技術文件的條文。本指導性技術文件出版時,所示版本均為有效。所有標準都會被修訂,使用本指導性技術文件的各方應探討使用下列標準最新版本的可能性。
GB/T 1356-2001 通用機械和重型機械用圓柱齒輪 標準基本齒條齒廓(idt ISO 53:1998)
GB/T 1357-1987 漸開線圓柱齒輪模數(neq ISO 54:1977)
GB/T2821-1992 齒輪幾何要素代號(neq ISO 701:1976)
GB/T 3374-1992齒輪基本術語
GB/T 10095.1-2001 漸開線圓柱齒輪 精度 第1部分:輪齒同側齒面偏差與徑向跳動的定義和允許值(idt ISO 1328-1:1997)
GB/T 10095.2-2001漸開線圓柱齒輪 精度 第2部分:徑向綜合偏差與徑向跳動的定義和允許值(idt ISO 1328-2:1997)
GB/Z 18620.2-2002圓柱齒輪 檢驗實施規范 第2部分:徑向綜合偏差、徑向跳動、齒厚和側隙的檢驗(idt ISO/TR 10064-2:1996)
GB/Z 18620.3-2002圓柱齒輪子檢驗實施規范 第3部分;齒輪坯、軸中心距和軸線平行度(dit ISO/TR 10064-4:1996)
GB/Z 18620.4-2002圓柱齒輪子檢驗實施規范 第4部分:表面結構和輪齒接觸斑點的檢驗(idt ISO/TR 10064-4:1996)
ISO/TR 10063 圓柱齒輪 功能組、檢驗組、公差族(正在制訂中)
3符號及相關的術語
3.1齒輪參數
b |
齒寬 |
mm |
d |
分度圓直徑 |
mm |
db |
基圓直徑 |
mm |
m,mn |
法向模數 |
mm |
mt |
端面模數 |
mm |
pn |
法向齒距 |
mm |
pt |
端面齒距 |
mm |
pb,pbn |
法向基圓齒距 |
mm |
pbt |
端面基圓齒距 |
mm |
S |
齒距組齒距數 |
- |
z |
齒數 |
- |
α,αn |
法向壓力角 |
° |
αt |
端面壓力角 |
° |
β |
螺旋角 |
° |
βb |
基圓螺旋角 |
° |
εα |
端面重合度 |
- |
εβ |
縱向重合度 |
- |
εγ |
總重合度 |
- |
3.2齒輪的偏差
單項要素測量所用的偏差符號,用小寫字母(如f)加上相應的下標組成;而表示若干單項要素偏差組合的“累積”或“總”偏差所用的符號,采用大寫字母(如F)加上相應的下標組成。有些偏差量需要用代數符號表示,當尺寸大于最佳值,偏差是正的;反之則負值。
fdb1) |
基圓直徑偏差 |
μm |
fdbm1) |
平均基圓直徑偏差 |
μm |
fe(feL,feR) |
齒輪軸線和輪齒(或同側齒面)軸心線間的偏心量 |
μm |
ffα |
齒廓形狀偏差 |
μm |
ffβ |
螺旋線形狀偏差 |
μm |
fHα1) |
齒廓傾斜偏差 |
μm |
fHαm1) |
平均齒廓傾斜偏差 |
μm |
fHβ1) |
螺旋線傾斜偏差 |
μm |
fHβm1) |
平均螺旋線傾斜偏差 |
μm |
f i′ |
一齒切向綜合偏差(與測量齒輪嚙合) |
μm |
f l′ |
切向綜合偏差的長周期分量 |
μm |
f s′ |
切向綜合偏差的短周期分量 |
μm |
f′ |
一齒傳動偏差(產品齒輪副) |
μm |
fpb1) |
基圓齒距偏差 |
μm |
fpbm1) |
平均基圓齒距偏差 |
μm |
fpbt |
端面基圓齒距偏差 |
μm |
fps1) |
跨齒齒距偏差 |
μm |
fpt1) |
單個齒距偏差 |
μm |
fwβ |
波度(沿螺旋線) |
μm |
fα1) |
壓力角偏差(標準) |
μm |
fαm1) |
平均壓力角偏差 |
μm |
fβ1) |
螺旋角偏差 |
μm |
fβm1) |
平均螺旋角偏差 |
μm |
FP |
齒距累積總偏差 |
μm |
Fpk1) |
齒距累積偏差 |
μm |
FpkS1) |
跨齒k個齒距累積偏差 |
μm |
FpS1) |
跨齒齒距累積偏差 |
μm |
Fi′ |
切向綜合總偏差(與測量齒輪嚙合) |
μm |
F′ |
傳動總偏差(產品齒輪副) |
μm |
Fα |
齒廓總偏差 |
μm |
Fβ |
螺旋線總偏差 |
μm |
3.3齒輪檢驗的名詞
dbeff |
有效基圓直徑 |
mm |
k |
跨齒距數 |
- |
l |
左旋 |
- |
r |
右旋 |
- |
Ca |
齒頂修緣 |
mm |
Cf |
齒根修緣 |
mm |
Cα |
齒廓凸度 |
mm |
Cβ |
輪齒鼓度 |
mm |
CⅠ(CⅡ) |
在基準面(非基準面)的齒端修薄 |
mm |
L |
左齒面 |
- |
LAE |
有效長度 |
mm |
LAF |
可用長度 |
mm |
LE |
至有效齒廓起始點的基圓切線長度 |
mm |
Lα |
齒廓計值范圍 |
mm |
Lβ |
螺旋線計值范圍 |
mm |
N… |
齒、齒距序數 |
- |
R |
右齒面 |
- |
λβ |
波度曲線波長(螺旋方向) |
mm |
λβX |
波度曲線軸向波長 |
mm |
ξ |
漸開線展開角 |
° |
Ⅰ |
基準面 |
- |
Ⅱ |
非基準面 |
- |
1)這些偏差可以是+(正號)或-(負號)。
4齒輪的檢驗項目
各種輪齒要素的檢驗,需要多種測量操作。首先,必須保證在所有測量中如涉及齒輪旋轉時,齒輪實際工作的軸線應與測量過程中旋轉軸線相重合。
在檢驗中,既不經濟也沒有必要測量全部輪齒要素的偏差,如單個齒距、齒距累積、齒廓、螺旋線、切向和徑向綜合偏差、徑向跳動、表面粗糙度等,因為其中有些要素對于特定齒輪的功能并沒有明顯的影響。另外,有些測量項目可以代替別的一些項目,例如切向綜合偏差檢驗能代替齒距偏差檢驗,徑向綜合偏差檢驗能代替徑向跳動檢驗。由于考慮到有這類情況,在ISO/TR10063中按齒輪工作性能推薦了檢驗組和公差族。然而,應該強調,對于質量控制測量項目的減少,必須由采購方與供方協商確定。
5偏差位置的識別
結合輪齒的測量,識別偏差的方便辦法是闡明其涉及的位置,如右齒面、左齒面、齒距或它們的成組。
5.1右或左齒面數
選定齒輪的一面作基準面,并標上字母“Ⅰ”,另一個非基準面為“Ⅱ”
對著基準面進行觀察,看到齒和齒頂,則右齒面在右邊,左齒面在左邊(見圖1、圖2)。
右和左齒面分別用字母“R”和“L”表示。
圖2內齒輪的標記和編號
5.2斜齒輪的右旋或左旋
外齒或內齒斜齒輪的螺旋方向,由右旋或左旋表示,螺旋方向分別由字母“r”和“l”表示。當齒輪軸豎立于觀察者前方,所見輪齒向右(左)上方傾斜者為右(左)旋齒輪。
5.3齒與齒面的編號
對著齒輪的基準面看,以順時針方向順序地數齒數,齒數后寫上字母R或L,表示它是右或左齒面,比如“齒面29L”。
5.4齒距的編號
單個齒距的編號和下個齒的編號有關,第N齒距介于“N-1”齒和第“N”齒的同側齒面之間,用字母R或L表示齒距是介于右齒面還是左齒面之間,例如“齒面2L”(見圖1)。
5.5齒距數“k”
偏差符號的下標“k”表示所要測量偏差的相鄰齒距的個數,實踐中,數字往往取代k,比如FP3表示3個齒距的齒距累積偏差。
5.6檢驗的規定
通常,測量應在鄰近齒高的中部和(或)齒寬的中部進行,如果齒寬大于250mm,則應增加兩個齒廓測量部位,即在距齒寬每側約15%的齒寬處測量,齒廓和螺旋線偏差應至少在3個以上均布的位置同側的齒面上測量。
6單個齒距和齒距累積偏差的檢驗
6.1概述
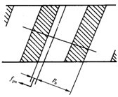
齒距偏差的檢驗包括測量其實際值(角度值)或者沿齒輪圓周上同側齒面間距離作比較測量(見圖3)。
與檢驗法向、端面和齒輪累積偏差不同,基圓齒距偏差是在沿基圓切平面上測量,因而與齒輪軸線無關。
圖3齒距(pt),齒距偏差(fpt)
表1為單個齒距測量虛擬偏差數據處理舉例表,表中的整數值實際上是很難遇到的。表中:N=齒距序數;A=用二測頭測得的相對齒距偏差值;B=所有A值的算術平均值;C=單個齒距偏差fpt,表示為A與B的差值;D=由fpt(C)值依次連續累加而得的齒距累積偏差。表1涉及到第18和第1齒之間的各齒面,其說明見圖4。
一般地,對于有很多齒數的齒輪,FP和FPS的差別可忽略不計。
表1單個齒距測量數據
N |
1 |
2 |
3 |
4 |
5 |
6 |
7 |
8 |
9 |
10 |
11 |
12 |
13 |
14 |
15 |
16 |
17 |
18 |
A |
25 |
23 |
26 |
24 |
19 |
19 |
22 |
19 |
20 |
18 |
23 |
21 |
19 |
21 |
24 |
25 |
27 |
21 |
B |
22.00 |
C |
+3 |
+1 |
+4 |
+2 |
-3 |
-3 |
0 |
-3 |
-2 |
-4 |
+1 |
-1 |
-3 |
-1 |
+2 |
+3 |
+5 |
-1 |
D |
+3 |
+4 |
+8 |
+10 |
+7 |
+4 |
+4 |
+1 |
-1 |
-5 |
-4 |
-5 |
-8 |
-9 |
-7 |
-4 |
+1 |
0 |
當用角度齒距測量方法時(即用一個觸頭的儀器),在每個測量位置上,將實際測得的角度減去理論角度,再將此差值(弧度)乘以觸頭與齒面接觸點的徑向距離,即可得到D值。而C值則可由N號的齒面的D值減去N-1號齒面的D值獲得。
圖4 表1示例的齒輪(z=18)的齒距偏差的圖解說明
6.2單個齒距精度的檢測
檢測齒距精度最常用的裝置,一種是有兩個觸頭的齒距比較儀,另一種是只有一個測量觸頭的角度分度儀,對實施這兩種檢測方法分別在6.2.1和6.2.2中闡述。
不帶旋轉工作臺的坐標測量機也可用來測量齒距和齒距偏差,所采用的有關相對運動與6.2.2中所述的原理基本相符(見圖5)。
圖5 端面齒距pt和單個齒距偏差fpt
6.2.1用齒距比較儀(兩個觸頭)檢測單個齒距
兩個測頭的位置,應在相對于齒輪軸線的同樣半徑上,并在同一橫截面內,測頭移動的方向要與測量圓相切。
因為很難得到半徑距離的精確數值,所以齒距比較儀很少用于檢測端面齒距的直實的數值。這種儀器最合適的是用途是確定齒距偏差。
一些齒距比較儀器裝備了導向滑軌,使測頭容易達到固定的徑向深度,一般到輪齒中部的附近(圖6),被檢的齒輪慢慢地轉動,繞著軸心連續地或間歇地轉動,而導向滑軌上的測頭在測量部位來回移動。
圖6使用齒距比較儀測量齒距偏差
6.2.2用角度轉位法(一個觸頭)檢測單個齒距
檢測過程涉及分度轉位器的使用,其精確度必須和齒輪直徑相協調,如圖7所示。
對每個齒面,測量頭在預先設定要檢測的部位上徑向來回移動,就可測得偏離理論位置的位置偏差,相對于所選定的基準齒面或零齒面,這個測得的數據代表了相差齒面的位置偏差,這樣記錄的數據曲線應顯示出齒輪在圓周上的齒距累積偏差(Fpk)。
第N個齒面的位置偏差減去第N-1個的,就是每個單個齒距偏差,負值要表示出來。
圖7 用角度法轉位法檢驗齒距
6.3用齒距比較儀檢測法向齒距精度
圖8表示法向齒距和法向齒距偏差fpn。
圖8法向齒距Pn和法向齒距偏差fpn(法向截面)
檢測時,當只有檢驗“法向”齒距偏差的便攜式比較儀,而沒有其他適當的儀器時,只得用法向齒距偏差測量來代替端面齒距偏差的測量。如圖9介紹的儀器,齒輪的齒頂圓用來定位,它必須和齒輪軸線有足夠的同心度,其他用于同樣用途的比較儀器有不同的定位方法,而不用齒頂面作為定位面。
圖9在直齒輪上用于檢測法向齒距偏差的便攜式齒距比較儀
因為標準GB/T10095.1中的公差值指的是端面齒距,所以在和公差比較前,法向齒距偏差測量值需轉換為端面數值。
它們的關系如下:

………………(1)
或者,可將公差值乘以

,這樣做所需的計算量往往比較少。
法向齒距偏差測量值不能加起來作齒距累積偏差。
6.4基圓齒距pb和基圓齒距偏差fpb的測量
一個齒輪的端面基圓齒距是公法線上的兩個相鄰同側齒面的端面齒廓間的距離,它也就是位于相鄰的同側齒面上漸開線齒廓起點之間的基圓圓周上的弧長度(見圖10)。

…………………………(2)
圖10端面基圓齒距pbt
法向與端面基圓齒距之間有如下關系:
p
bn=p
btcos

………………(3)
相嚙合的齒輪各齒之間有效負荷的分配,要求兩個齒輪的基圓齒距精度能得到充分的控制,在兩個齒輪要求能互換時,這點就顯得尤其重要。這種情況下,一個重要的測量目標,就是確定用于與其他齒輪的平均基圓齒距相比較的該個齒輪的平均基圓齒距。
法向基圓齒距的理論值是法向模數和法向壓力角的函數,即:
pbn=mπcosαn………………(4)
通常,我們用便攜式比較儀來測量法向基圓齒距偏差,這種儀器的使用原理如圖11所示,借助于一組合適的量規,基圓齒距比較儀在標定后也能直接用來測量與理論基圓齒距的偏差。
圖11測量基圓齒距的便攜式比較儀測直齒輪
在測量基圓齒距時,必需保證比較儀的觸頭的接觸點不在齒廓或螺旋線的修形區域內。
當手頭沒有合適的齒廓檢查儀器時,測得的基圓齒距偏差可用作推斷壓力角偏差fα的基礎,因為測得的基圓齒距偏差受到齒距偏差和齒廓形狀偏差的影響,這步驟只能在后面兩種偏差很小時才能使用。
在計算近似的平均壓力角偏差或其他偏差時,應該用基圓齒距的平均值。
平均法向基圓齒距偏差fpbm,平均基圓直徑偏差fdbm、平均壓力角偏差fαm和有效基圓直徑dbeff有以下關系:

……………………(5)

………………(6)

………………(7)
6.5齒距累積偏差Fpk和FP的確定
齒距累積偏差是這樣確定的,即對任何指定數目的端面單個齒距偏差(見圖4b)作代數相加,單個齒距偏差的測定見6.2.1。
用6.2.2闡述角度轉位法可直接測得齒距累積偏差值。
6.5.1齒距累積總偏差FP的確定
按照定義,齒距累積總偏差是指一個齒輪的任意扇形部分同側齒面間的最大齒距累積偏差,其數值等于齒距累積偏差曲線的最高和最低點之間的距離,見圖4b。
6.5.2齒距累積偏差跨齒距檢測
當齒輪的齒數很多用比較儀作單個齒距校驗法測量時,由于很多個測量的不正確性疊加起來而形成很大的誤差,每次測量中不正確性的來源之一,是很難保證后觸頭與前一次測量時前觸頭所占位置完全重合。
如果用跨齒距進行檢驗,則上述的不正確性可以減少,為此建議當齒輪超過60個齒時,最好改用跨齒距測量,圖12表示跨齒距數為4的測量原理,即齒距號1至4,下一個要測的扇形區包含齒距號5至8,此時位于右側的后觸頭將與4號齒齒面接觸,此接觸點應為上一次測量時位于左側的前觸頭所占的位置,6.2.1所述的注意要點同樣適用于跨齒距測量。
圖12跨齒距測量原理
在選擇跨齒數(每跨齒距數)S時,必須符合以下兩點:
a) 每跨的弦長應適合所用的齒距比較儀的量程;
b) 測得的點數應足夠用來繪制出一條可接受的累積偏差的曲線。
圖13中所提供的公式和曲線可指導選擇合適的齒距數。
如果可能,z/S應取整數,但是,如z/S不是整數時,跨齒距偏差測量的跨齒數應取大于z/S的整數,此時當測量到量后一個跨齒距時,其中包含的一部分齒距是在第一個跨齒距測量時已經包含了的。
例:z=239,m=8,這樣S=5
故跨數(讀數個數)至少等于239:5=47.8,取跨數(讀數個數)為48個,則測量重疊的齒距為5×48-239=1(齒距)。
圖13跨齒距測量時每跨齒距數(S)的選擇
6.5.3跨齒距測量結果的評定
跨齒距偏差的代數和建立起來的曲線,常常不能反映齒距累積總偏差,認識這一點是很重要的,因為跨距內最極端的單個齒距偏差的影響,原來會影響齒距累積總偏差的數值,但卻在跨距內被抵銷了。
這樣,如果任何一個數值非常接近于給定的公差極限,則最小、最大和重疊區內的單個齒距偏差應該融入跨齒距累積偏差曲線中,以保證齒距累積總偏差更加精確。
用數字取代符號Fps和FPKS的下標,表示跨齒距累積偏差可帶來很大方便,用這種方法,就可以表示出有關的弧長或齒距數,例如,FP24S4表示在S=4(跨距數)跨齒測量下,k=24齒距弧長內的跨齒距累積偏差。
6.5.4齒距累積偏差FPK的必要性
如果在較少的齒距數上的齒距累積偏差過大時,在實際工作中將產生很大的加速度力,這在高速齒輪傳動中更應重視,因為可能產生很大的動載荷,因而有必要規定較少齒距范圍內的累積公差。
圖14中分別表示了兩個齒輪的齒距累積偏差曲線,從兩曲線中可看出其齒距累積總偏差是一樣的,但少數齒距的最大齒距累積偏差有著明顯的差別,如曲線a和b中k個齒距所示,按照規定的公差值,曲線a中的FP4的偏差是可以通過的,而在曲線b中FP4的偏差是不能接受的。
給定數目的k個齒距上的最大齒距累積偏差Fpk可由Fpk圖導出,即依次從齒輪的每個齒面出發取圓弧長度(k×pt),實際上其最大值也可在少數跨齒距測量中得到。
現看圖4例子上提供的數據,當k=3,第15,16和17齒距的單個齒距偏差的總和,表明了三個齒距最大齒距累積偏差為10μm。
區別Fpk值的位置的一個簡便方法是,在圓括號中列出有關的齒距序數,例如,上面的例子可按下列表示:
FP3(15…17)=10μm
6.6關于齒距偏差測量和對其結果評價的一些說明
單測桿和比較儀測桿末端通常是球形,每個測桿軸心線應與從齒輪軸心線到測桿和齒面接觸點這一徑向線平行(圖6、圖7和圖12)。
對于所有齒距偏差的測量方法,除了用基圓齒距比較儀測量基圓齒距偏差外,其徑向和軸向跳動的值都應很小,以至可以忽略不計。然而,如果待檢齒輪的軸心線偏離檢測儀器回轉的軸心線,而計量裝置的位置又按后者的軸心線固定時,則雙倍振幅等于兩倍偏心量的正弦分量,要加入到齒輪齒距累積偏差的真實曲線上去。
由于上面提到的偏離(偏心量fe)所形成的正弦曲線,構成齒距累積偏差圖(圖14a)的一部分,是從僅僅一組同側齒面得到的,其相位將不同于由左側和右側齒面綜合得到的徑向跳動曲線,它的雙倍波幅等于2fe,波幅也可能不同。
圖14齒距累積偏差曲線圖
由齒輪累積偏差值或切向綜合偏差值的測量得到偏心量的數值,涉及右側或左側齒面的,最好用feR或feL分別表示。
7齒廓偏差的檢驗
按定義,齒廓偏差是在端平面上垂直于齒廓的偏差值,然而,偏差也可在齒面的法向測量,然后把測得的數值除以cosβb,經這樣的換算后再與公差值比較。
7.1齒廓圖
齒廓圖包括齒廓跡線,它是由齒輪齒廓檢驗設備在紙上或其他適當的介質上畫出來的齒廓偏差曲線,齒廓跡線如偏離了直線,其偏離量即表示與被檢齒輪的基圓所展成的漸開線齒廓的偏差。
齒廓修形也表現為偏離了漸開線,但就“設計齒廓”而言這種情況下不能作為偏差來對待。
沿齒廓圖上任何一點,均可與一個半徑、一個基圓切線長度和一個漸開線滾動展開角相聯系。
圖15是一個齒廓的示例以及其與相應齒廓跡線的關系和有關的術語。關于齒廓跡線術語的詳細定義和概念在GB/T10095.1中敘述。
齒廓計值范圍Lα等于在有效長度LAE中從其頂端或倒棱處減去8%,這樣做是為了在評定時排除在切削過程中非有意的多切掉的頂部,而這樣做并不損害齒輪的功能,在評價齒廓總偏差(Fα)和齒廓形狀偏差(ffα)時,在這8%區域內如有超出設計齒廓的材料,從而增加其偏差量時必須計算進去,而在這區域內如多切去材料而形成的偏差值,其公差可予增大。
7.2齒廓圖的評定
為了齒輪質量分等,只須檢驗齒廓總偏差Fα即可,見GB/T10095.1。
然而,為了某些目的,分別確定“齒廓傾斜偏差”fHα和“齒廓形狀偏差”ffα也是有用處的。為此,需要在齒廓圖上加上“平均齒廓跡線”如圖15所示,參見GB/T10095.1-2001中圖2a、b、c。關于ffα和fHα允許值,作為指導性資料在GB/T10095.1-2001附錄B中給出。
圖15齒輪齒廓和齒廓示意圖
從齒面法向上測得齒廓偏差,如果檢測儀器未轉換成端面值時,則其結果應除以cosβb轉換為端面齒廓法線上的相應值,然后將獲得的數據同端面齒廓法向偏差的規定公差值比較。
7.3fHα和fα的代數符號
如圖15所示,在圖形中平均齒廓跡線若向齒頂A側升高,則齒廓傾斜偏差稱為正,則相應的壓力角偏差稱為負。在圖16中表示了由于安裝于齒輪加工機床上有偏心而造成的正傾斜及負傾斜。
如一對相嚙合齒輪,其齒廓圖中的傾斜相等并且符號相同,則其偏差就相互抵銷,這一規律對外齒輪和內齒輪都適用。
7.4壓力角偏差fα
齒廓線如在齒頂端凸出,表示其壓力角減小。
圖16平均齒廓傾斜偏差fHαm
齒廓傾斜偏差可按下列公式換算為壓力角偏差fα
按弧度
f
α=-

………………(8)
按角秒
f
α=-

………………(9)
式中:fHα單位為μm,Lα單位為mm。
對于外齒輪、內齒輪:
當fHα>0,見fdb>0 fα<0。
7.5平均齒廓傾斜偏差
單個齒廓的傾斜偏差可能是由于制造或檢驗時安裝不準確形成的偏心所造成,但是,這種偏差沿著齒輪圓周是變化的,對于同側齒面的平均齒廓傾斜偏差,這種變化就相互抵銷掉了。
圖16中,舉例表示了偏心對齒廓傾斜的影響,以及平均齒廓偏差的確定。
往往需要計算出同側齒面齒廓傾斜偏差的平均值,以用來確定應采取什么步驟來糾正機床上裝夾時產生的誤差。
在實際應用中,取沿齒輪圓均布的幾個同側齒面計算其齒廓傾斜偏差算術平均值即可。
取兩個在直徑上相對位置的同側齒面,從其齒廓跡線上可以得到適用的平均值,然而,如齒廓傾斜偏差沿齒輪圓周變化時,則必須至少取三個均布同側齒面的齒廓線,否則偏差不一定能被發現。
7.6基圓直徑偏差fdb、平均基圓直徑偏差fdbm和有效基圓直徑dbeff
基圓直徑偏差fdb=deff-db直接與齒廓傾斜面偏差fHα有關,其關系式如下:

………………(10)
這樣,當“平均齒廓傾斜偏差”(見7.5)確定之后,平均基圓直徑偏差和有效基圓直徑可按下列公式計算:

………………(11)

………………(12)
7.7齒廓公差帶
一個方便的檢驗方法是檢驗齒廓跡線是否位于規定的公差帶之內。
很多公差帶的規定,其形狀大體上像字母“K”(圖17),即眾所周知的“K”形圖。
圖17用公差帶法檢驗齒廓精度
這種圖的應用如圖17所示,其中圖17a所示齒廓跡線落在公差帶之內,而在圖17b中則沒有達到。
如果需要的話,也可綜合應用兩種齒廓精度評定方法(即用某一質量等級的標準公差和用公差帶法),如圖18中的例子所示。
圖18 不同齒廓區段用不同公差實例
7.8齒廓凸度Cα
在有些應用中,適當的齒廓修形涉及頂部和根部,修削使輪齒從中間開始逐漸向頂部和根部形成弓形,如圖19所示。
圖19齒廓凸度Cα
漸開線曲率增加的高度可用下面方法確定
在線圖中,用一條直線將齒廓跡線與計值范圍(Lα)兩端交點連起來,如圖20所示,在這條直線與另一條和它平行且相切于平均曲線間的距離(在記錄偏差的方向測量),就等于該齒廓的凸度(Cα)。
有意做成的凸形齒所產生的齒廓線圖,其設計齒廓和平均齒廓跡線通常為呈拋物線。
圖20齒廓凸度Cα的確定
8螺旋線偏差的檢驗
按定義,螺旋線偏差是在端面基圓切線方向測量的實際螺旋線與設計螺旋線之間的差值,如果偏差是在齒面的法向測量,則應除以cosβb換算成端面的偏差量,然后才能與公差值比較。
8.1螺旋線圖
螺旋線圖包括螺旋線跡線,它是由螺旋線檢驗設備在紙上或其他適當的介質上畫出來的曲線,此曲線如偏離了直線,其偏離量即表示產際的螺旋線與不修形螺旋線的偏差。
設計者所采用的螺旋線修形,也表現為同直線的偏離,但這種情況不能作為“設計螺旋線”的偏差來對待。見GB/T10095.1-2001中3.3.1.3。
有時用放大跡線長度來表較小齒寬,或縮小表示較大的齒寬。“跡線長度”見GB/T 10095.1-2001中3.3.1.1。
關于右和左螺旋線,可分別用字母“r”、“l”作為標或下標。
在圖21一個曲型的螺旋線圖例中,可看到設計螺旋線未修形時齒面的螺旋線偏差,如果“設計螺旋線”是鼓形,齒端減薄或別修形時,則其跡線奕為適當形狀的曲線。
圖21螺旋線圖示例
有關螺旋線跡線的詳細術語、定義和概念,已在GB/T10095.1中敘述。
螺旋線計值范圍Lβ等于跡線長度兩端各減去5%的跡線長度,但減去量不超過1個模數(1m),所以要提出此減去量是為了有些機加工的條件所引起的,非有意的少量端部減薄不計入偏差量的評定中去,在評定螺旋線總偏差(Fβ)和螺旋線形狀偏差(ffβ)時,若在5%區域內有多余的材料,則增加的偏差必須考慮時去,而在這區域內如多切去金屬而形成的偏差值,其公差可予增大。
8.2螺旋線圖的評定
對于齒輪質量分等只需檢驗“螺旋線總偏差”Fβ即可,見GB/T 100095.1。
然而,為了某些目的,分別確定“螺旋線傾斜偏差”fHβ和“螺旋線形狀偏差”ffβ也是有用處的,為此,需要在螺旋線圖上加上“平均螺旋線跡線”如圖21。關于 ffβ和fHβ公差值,作為指導性資料在GB/T10095.1-2001附錄B中給出。
從齒面法向上測得螺旋線偏差,如果未由檢測儀器轉換成端面值時,則其結果應除以cosβb轉換為端面齒廓法線上的相應值,如此所得值可以作為端面齒廓法向計量的偏差與給定的公差比較。
8.3用檢測軸向齒距來確定螺旋傾斜偏差。
如不可能得到螺旋線圖時,例如很大的齒輪不可能在測量機上測量時,則用軸向齒距儀的量值來確定“螺旋線傾斜偏差”fHβ。
這類儀器主要包括一個精密的水準儀和兩個球形針頭,兩個球的間距要要調整到近似為軸向齒距的整數倍,兩個球放入輪齒齒槽間,使其連心線大致與齒輪軸線平行,然后調整水準儀到零點,記錄下沿齒輪其他位置上偏離零的相對斜度,這樣確定的斜度,連同針頭間的距離,可以用來計算出齒面的平均螺旋線傾斜偏差,這個方法的測量精度是不太高的。
如果這種測量是在齒輪圓周三個以上均無的位置時行的,此時端面齒距偏差對測量結果的影響趨于抵銷,,從而可以計算出與齒輪軸線無關的近似平均“螺旋線傾斜偏差”。
另外,只要所有齒面沒有嚴重的齒廓偏差,也沒有修成鼓形,則左側和右側齒面的平均“螺旋線傾斜偏差”都可確定。
這種測量方法不論齒輪處于什么姿態都是有效的。
應用這種方法必要的條件是:齒寬必須大于一個軸向齒距。
8.4fHβ和fβ的代數符號
螺旋線傾斜偏差fHβ和螺旋角偏差fβ應有一個代數符號,使之完整。
當螺旋角較設計的螺旋角大時,偏差為正(fHβ>0和fβ>0),反之較設計的螺旋角小時,則偏差為負。
直齒圓柱齒輪的螺旋線偏差如果不等于零,則不用代數符號表示,而改用注腳“r”和“l”表示,即分別代表右旋或左旋的偏差。
如果一個齒輪與基相嚙合的齒輪,其齒面的螺旋線傾斜偏差fHβ和fβ大小相等,代數符號一致,則其偏差是相互抵消的。
8.5平均螺旋線傾斜偏差fHβm和平均螺旋角偏差fβm。
如果在加工一個齒輪時,齒輪的軸線偏離了切齒機床的軸線或兩軸線相交,則該齒輪輪齒的螺旋線傾斜偏差沿著齒輪的圓周是變化的,見圖22.
圖22有偏心或傾斜的齒輪圓周上四個均布齒面的螺旋線傾斜偏差的跡線
即使其偏差是在規定的公差范圍內,也必須注意這種缺陷有可能引起齒輪在工作時產生振動,因而要采取措施以避免再出現此種情況。
為了糾正加工機床上的安裝或為了與相嚙齒輪相匹配,需根據在齒輪圓周三個以上均布齒面所測得的若干個偏差來計算其平均螺旋線傾斜偏差。

………………(13)
取在直徑上對置的同側位置的齒面,從其螺旋線圖上可以獲得適用的平均值,然而,如螺旋線傾斜偏差沿齒輪圓周變化時,則必須至少取三個均布齒面的跡線。否則其偏差不一定能被發現。
8.6螺旋線公差帶
檢測螺旋線精度的一個簡便方法,是看跡線是否在給定公差帶內。
這個方法實質上和“齒廓公差帶”是同樣的(見7.7)。
8.7輪齒的鼓度Cβ
在線圖中,未修整齒面的螺旋線跡線是用一條直線來表示,而鼓形齒的齒面其相應的跡線是弓形曲線,在線圖中,鼓形齒齒面的設計螺旋線和平均螺旋線變線通常是拋物線(見圖23)。
輪齒鼓度Cβ的評定步驟,與7.8中闡述的齒廓凸度Cα是類似的。
圖23輪齒的鼓度Cβ
8.8波度
波度是螺旋線形狀偏差,具有不變的波長和基本不變的高度,切齒機床傳動鏈元件的偏擺是導致出現波度通常的主要原因,特別是:
a) 刀架進給絲杠的偏擺;
b) 分度蝸輪傳動中蝸桿的偏擺。
由于原因a)所造成的波度的波長,在沿螺旋線方向測量時,等于進給絲杠的螺距除以cosβ。
由于原因b)所造成的波度,其波長為:

………………(14)
由于原因b)所造成的波度,其波數(投影到端面上計數)等于主分度蝸輪的齒數ZM。這可能造成在噪聲譜中那部分刺耳的單純音,其頻率相當于被測齒輪的旋轉速度(轉數)乘以ZM。
圖24說明了在螺旋線檢測儀器上裝置波度測量附件的應用方法,這將在下面討論。
在檢測原因a)或b)造成的波度曲線時,計算出相關的波長,把附件的球形定位腳放在奇數個波長的間距上,隨后使定位腳沿螺旋線滑動,波度的數值由位于定位腳中間的測頭顯示出來。
圖24波度曲線檢測原理
圖24中可看到,當測頭接觸波峰而后又接觸波谷時,就如圖顯示的那樣,測頭的位移等于兩倍波高,這個特點提高了儀器的靈敏度,測量結果以圖的形式繪制出來。
需要注意的是,若定位腳的間距為偶數個波長時(圖24,s=4

),波度就顯示不出來了。
9切向綜合偏差的檢驗
9.1概述
為進行切向綜合偏差的檢測,兩個齒輪其中一個可以是測量齒輪,以適當的中心距相嚙合并旋轉,在只有一組同側齒面相接觸的情況下使之旋轉直到獲得一整圈的偏差曲線圖。
作為切向綜合偏差檢測時,需施加很輕的負載和很低的角速度,以保證齒面間的接觸所產生的記錄曲線,反映出一對齒輪輪齒要素偏差的綜合影響(即齒廓、螺旋線和齒距)。
下列幾種組合都可用于檢測:
a) 一個產品齒輪和一個測量齒輪;
b) 一對相配的產品齒輪;
c) 兩個以上齒輪相嚙合的齒輪輪系。
關于a)種情況,以產品齒輪轉一周后,即產生適用的記錄,但必須注意,測量齒輪的精度將影響檢測的結果,如測量齒輪的精度比被檢驗的產品齒輪的精度至少高4級時,則測量齒輪的不精確性可忽略不計,但如果測量齒輪的質量達不到比被檢齒輪高4個等級時,則測量齒輪的不精確性必須考慮進去。
切向綜合總偏差(Fi′)是指一個齒距位移間的切向綜合偏差。
關于b)種情況,涉及兩個產品齒輪所產生的偏差(F′和f′),稱為“齒輪副的傳動偏差”。為了完全確定完整的偏差譜圖,必須繼續旋轉,直至兩個產品齒輪的旋轉數分別等于另一相配齒輪齒數被齒輪副兩個齒數的最大公因數除所得的數,用這種方法確定的旋轉數符合齒輪副的完整嚙合周期。形成的偏差曲線圖反映出齒輪副中兩個齒輪的輪齒要素的各分量,如果要檢測出單個齒輪的輪齒偏差,必須對數據作適當的處理(見9.3.3.2)。
如果有適當的試驗臺,重載齒輪的切向綜合偏差也可用類似方法檢驗,但在這種情況下,記錄下來的偏差受到輪齒受載變形,嚙合剛度變化以及由于旋轉速度面產生沖擊和輪齒的幾何形狀不完善等因素的影響,故GB/T10095.1不適用于這類檢測。
關于c)是齒輪傳動運動學的評定,這種檢測不屬于GB/T10095的應用范圍。
9.2產品齒輪與測量齒輪副的檢測
9.2.1直齒圓柱齒輪
切向綜合偏差的記錄圖,包括齒輪和測量齒輪嚙合作完整圈旋轉數的長周期成分,和加在其上的各齒相繼嚙合的短周期成分。
圖25是切向綜合偏差的記錄曲線,它是在與測量齒輪嚙合時,16個齒的產品齒輪轉一轉所形成的。
圖25 直齒圓柱齒輪切向綜合偏差圖
9.2.1.1直齒輪齒廓偏差的影響
在切向綜合偏差檢測中,如果所用的測量齒輪是完全精確的,這就意味著切向綜合偏差圖上所表示的只是產品齒輪的輪齒各要素的偏差的綜合。
圖26所示意的是相當于三種不同齒廓的產品齒輪與測量齒輪相嚙合產生的三個齒嚙合周期的切向綜合偏差記錄圖,第一個表示無修形也無誤差,第二個則表示自齒高中部開始到有效齒廓兩端逐漸修形,而第三個則表示有“傾斜偏差”。
圖26直齒輪齒廓偏差的影響
圖25中注明了切向綜合總偏差Fi′,最大一齒切向綜合偏差fi′以及齒廓分量“a”和單個齒距成分“b”。
圖26A表示為被測齒輪和測量齒輪兩者均為無誤差、無修形的齒輪時,得到一條直線形圖。
圖26B中,記錄圖表示齒頂和齒根修削,形成整個齒廓為凸形(Cα)從被動產品齒輪的齒頂開始進入嚙合時起,偏差值逐漸增加到零,即接近齒高中部時,然后是逐漸減少的趨勢,一直到輪齒嚙合結束。
圖26C中,圖中所示三角形的成分,表示產品齒輪的接觸由齒頂逐漸移到有效齒廓起點時,切向綜合偏差逐漸從零變為一個負值,在這一點時,接觸突然轉移到下一個齒,從而產生一個突變為正的各齒相等的切向綜合偏差。
必須記信:記錄下來的切向綜合偏差線圖并不僅反映檢驗少數幾數幾個齒的齒廓偏差的影響,而且受到產品齒輪輪齒工作齒面上任何凸出物接觸的影響。
9.2.1.2直齒輪齒距偏差的影響。
如果在齒距N處產生一個齒距偏差,是當旋轉接觸過程從N-1齒轉移到N齒時,一個局部的切向分量將顯示在切向綜合偏差圖上,它表現為圖上齒廓展成分量中一個分量的位移。
圖27表示單個齒距偏差對切向綜合偏差的影響。
圖27直齒輪單個齒距偏差的影響
當各齒通過嚙合時,單個齒距偏差在切向綜合位移圓弧上有累積作用。這種影響在切向綜合偏差圖上看得很清楚,這樣,可確定齒距累積偏差值,(比如k=2.3,…)即在適當數量的齒距間測頂點切線的縱坐標。圖28中表示了單個齒距偏差、單個齒距和齒廓組合偏差以及近似的齒距累積總偏差。
圖28直齒輪的切向綜合偏差及其各成分
9.2.1.3直齒輪螺旋線偏差的影響
螺旋線偏差其大小和符號對一個齒輪的每一個齒都一樣時,意味著相嚙合時有一致的局部接觸區,因此,切向綜合偏差不會受什么影響。
如果沿一個產品齒輪一圈上各齒的螺旋線偏差的大小和符號均改變時,則切向綜合偏差將受到影響,螺旋線偏差大小的改變將影響切向綜合偏差。
如果在這種情況下,嚙合相對的兩端點的齒廓偏差也不相同,則切向綜合偏差圖上的齒廓(一齒綜合)成分也將受到影響。
9.2.1.4直齒輪重合度的影響
由一對“測量齒輪與產品齒輪”嚙合所得出的切向綜合偏差圖,是由代表大部分齒廓偏差的一系列相繼的曲線組成的,如圖29所示。在齒輪進入嚙合到脫開的整個周期中,切向綜合偏差與“兩對齒一單對齒一兩對齒”嚙合段的相位間的關系,在圖中已清楚地表明,很容易看了:當重合度εα等于1時,可實現最長的單對齒嚙合線,隨著重合度的增加,單對齒嚙合長度就相應減小,而當重合度等于或大于2時單對齒嚙合段就不存在了。
為了獲得盡可能多的有用數據,測量齒輪的輪齒高應做得盡可能地深(在有足夠齒頂寬的條件下),這樣一來,就可以在加大中心距的情況下進行檢測,使其重合度為1;還可以進行這樣檢測,將中心距調整到使其實際運行的工作齒面都能顯示出來。
圖29(直齒輪)切向綜合偏差圖上齒間接觸轉移對齒廓分量的影響
9.2.2斜齒輪
當總重合度εγ小于2時,斜齒輪的嚙合情況與重合度εα小于2的直齒輪是相類似的,在這情況下,上面關于直齒輪的說明對斜齒輪同樣適用。
在通常情況下,斜齒輪的總重合度εγ常常超過2,這時,表示齒廓偏差的短周期成分將變得到某種程度平滑,這是由于有兩對以上的齒同時嚙合之故。
圖30所示線圖中,情況“A”為斜齒輪而“B”則為直齒輪,顯示出兩種情況下重疊齒影響的差別。
當評定切向綜合偏差檢測的結果時,必須十分小心,這是因為這種測試的結果,可能與考慮理論重合度及假定斜齒輪的齒廓和齒寬上均是理想的接觸時所獲得的結果大不一樣。
在滿負載時,工作齒面上的接觸斑點即使是均勻分布的,在輕載下進行切向綜合偏差檢測時,就不見得是這種情況了,此時齒面上接觸斑點也可能是局部的。這情況說明,檢測時的重合度比理論計算的要小的多。
圖30重合度的影響
9.3應用舉例
9.3.1缺陷的識別和定位
切向綜合偏差的檢測,可幫助我們方便地辨認影響傳動質量的偏差并找到其部位。例如從圖31很容易看出一個輪齒有缺陷。而且往往有可能就地作出糾正措施。在這種情況下,調整的效果可以很快得到驗證。
圖31部分的切向綜合偏差圖實例解釋
9.3.2齒輪的選配嚙合
在一些特定的情況下,兩相配齒輪的齒數相等可成整倍數,而且不要求互換時,可采用特殊的步驟以實現最優的工作性能。得到最優嚙合效果的辦法是:將齒輪轉動一個90°的相位使之重新嚙合,以便初步找到哪個象限時其切向綜合偏差為最小。在此基礎上,再將齒輪的相位轉動一個比90°小的角度,最后找出最優的嚙合相位。
在圖32中表示出一對齒輪(左側和右側)在不同相位嚙合時的線圖。
從圖中可以很明顯地看到左齒面和右齒面的切向綜合偏差圖是不一樣的。因此,對一個雙向轉動都要求高傳動精度的齒輪副,要選擇一個中間的嚙合相位,以獲得最佳的折衷效果。
圖32嚙合相位改變對切向綜合偏差圖的影響
9.3.3切向綜合偏差數據的識別分析
9.2提代了切向綜合偏差圖的數據識別的資料,當用一個測量齒輪形成切向綜合偏差圖時,產品齒輪只需旋轉一圈。如果兩個產品齒輪嚙合,就需旋轉若干圈來形成足夠的切向綜合偏差圖。
使用儀器處理數據,可分離和記錄切向綜合治理合偏差的長周期和短周期成分,可使重要數值識別和定位相對地容易。
重要的事是記住,在濾掉長周期分量后,一齒切向綜合偏差fi′(圖33A)實際上變小了,這樣真正的最大偏差fi′就未必能在經濾波后的短同期分量的曲線(圖33C)中表示出來。
9.3.3.1產品齒輪與測量齒輪測試數據的分析
從一幅完整的切向綜合偏差線圖中,可以很方便地識別出切向綜合總偏差Fi′和最大一齒切向綜合偏差fi′。但是,為了辨認出長周期成分fi′的最大值和重要的短周期分量fs′,需要用一個濾波系統來處理數據信號,經低通濾波得出長周期分量,而經高通濾波得出短周期分量。
圖33A表示未濾波的切向綜合偏差信號,圖33B和33C分別表示經上述處理后的長周期和短周期分量。
9.3.3.2產品齒輪副測試數據分析
產品齒輪副嚙合所形成的切向綜合偏差線圖,通常顯示出一系列的周期性偏差,相應于逐齒嚙合的循環以及小齒輪和大齒輪旋轉的周期。
圖34C表示切向綜合偏差的全輸出信號,經仔細選擇的高通、低通和帶通等濾波處理后,信號的各成分可以分開。
小齒輪所生成的長周期分量示于圖34B,切向綜合偏差短周期分量示于圖34A。
圖33在切向綜合偏差圖上分析長周期和短周期偏差分量
圖34切向綜合偏差圖的分析,信號濾波的結果
9.3.3.3用快速富氏轉換(FFT)法作數據分析
測試裝置輸出的信號,可直接接到一臺適當的頻譜分析儀作FFT分析。
圖35中的線圖表示一幅完整的切向綜合偏差線圖,以及FFT分析所得的結果。
圖35一對產品齒輪檢測獲得的切向綜合偏差的富氏分析結果
這種方式的分析是有效的,通過它可獲得有關大小齒輪的各種缺陷的信息,包括切向綜合偏差的長周期和短周期分量。
在作富氏分析時,為了得到充分和精確的結果,應該提供兩個齒輪旋轉整轉數的信號。
圖35所示為FFT分析得提的各主要成分的頻譜圖,橫坐標是諧波數“n”,即相對于大齒輪的旋轉頻率。對各頻率,必須記住齒輪噪聲和振動頻譜,可包括在輪齒嚙合頻率中一個或多個低諧和高諧的重要成分。
在本例子中,包括大齒輪8轉中發出的信號,該齒輪有35個齒,這樣總的輪齒嚙合循環等于280。