產品展示
CF系列圓錐-圓柱硬齒面齒輪減速機是引進美國技術,經優化設計,具有國外同類產品水平。
本系列減速機采用弧齒錐齒輪與圓柱齒輪減速,具有承載能力高、噪聲低、體積小、機械傳動效率高、運轉平穩、使用壽命長等顯著特點。本系列減速機無通過了熱平衡許用功率的校核,選用方便,如需附加冷卻裝置,在定貨時廠家會注明。
減速機適用范圍如下:
(1).高速軸轉速不大于1500轉/分。
(2).工作環境溫度為-40~45℃,如果低于0℃,高動前潤滑油應預熱至0℃以上。
標記方法:

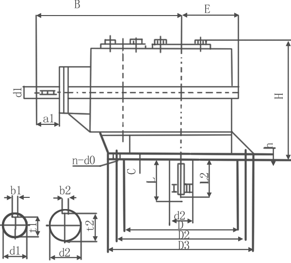
CF系列圓錐圓柱硬齒面齒輪減速機外形尺寸

|
CF硬齒面齒輪減速機主要參數及安裝尺寸 | ||||||||||||||||||
|
型號 |
d1 |
a1 |
b1 |
t1 |
d2 |
L1 |
L2 |
b2 |
t2 |
D1 |
D2 |
D3 |
C |
h |
1-d0 |
B |
H |
E |
|
CF180 |
40k6 |
80 |
12 |
35 |
65k6 |
130 |
110 |
18 |
58 |
320 |
360 |
400 |
6 |
22 |
8-18 |
580 |
450 |
250 |
|
CF212 |
45k6 |
90 |
14 |
39.5 |
80k6 |
145 |
130 |
22 |
71 |
380 |
430 |
480 |
8 |
25 |
8-22 |
650 |
480 |
270 |
|
CF250 |
50k6 |
100 |
14 |
44.5 |
95k6 |
170 |
150 |
25 |
86 |
455 |
520 |
580 |
8 |
30 |
12-22 |
760 |
510 |
300 |
|
CF300 |
60k6 |
120 |
18 |
53 |
110k6 |
200 |
200 |
25 |
100 |
530 |
590 |
640 |
10 |
30 |
12-22 |
830 |
540 |
330 |
|
CF355 |
65k6 |
130 |
18 |
58 |
120k6 |
225 |
220 |
32 |
109 |
640 |
720 |
780 |
10 |
45 |
12-27 |
960 |
600 |
370 |
|
CF400 |
70k6 |
140 |
20 |
62.5 |
140k6 |
255 |
230 |
36 |
128 |
700 |
760 |
820 |
12 |
40 |
12-27 |
1050 |
690 |
410 |
|
CF475 |
80k6 |
150 |
22 |
71 |
160k6 |
255 |
250 |
40 |
147 |
840 |
940 |
1010 |
12 |
42 |
16-30 |
1160 |
750 |
470 |
|
CF530 |
90k6 |
170 |
25 |
81 |
200k6 |
325 |
315 |
45 |
185 |
97 |
1080 |
1150 |
12 |
45 |
16-33 |
1250 |
830 |
520 |
|
CF系列圓錐-圓柱兩級齒輪減速機 | ||||||||||||||
|
CF系列圓錐-圓柱兩級齒輪減速機選用表 | ||||||||||||||
|
公稱傳動比i |
20 |
18 |
15 |
13.6 |
20 |
18 |
15 |
13.6 |
12.5 |
11.5 |
10.7 |
10 |
減速機
型號 |
許用輸
出扭矩 |
|
出軸傳速rpm |
50 |
55 |
65 |
73 |
75 |
83 |
100 |
110 |
120 |
130 |
140 |
150 | ||
|
輸入同步轉數 |
1000 |
1500 | ||||||||||||
|
電機功率kW |
p/n代號 | |||||||||||||
|
5.5 |
1/6 |
2/6 |
3/6 |
5/6 |
1 |
3 |
5 |
8 |
11 |
14 |
18 |
22 |
CF180 |
1150 |
|
7.5 |
1/6 |
2/6 |
4/6 |
6/6 |
2 |
4 |
6 |
9 |
12 |
15 |
19 |
23 | ||
|
11 |
1/6 |
3/6 |
4/6 |
5/6 |
1 |
3 |
7 |
10 |
13 |
16 |
20 |
24 | ||
|
15 |
2/6 |
3/6 |
5/6 |
6/6 |
2 |
4 |
5 |
7 |
10 |
17 |
21 |
25 | ||
|
18.5 |
1/6 |
4/6 |
7/6 |
8/6 |
1 |
3 |
6 |
8 |
11 |
13 |
15 |
17 |
CF212 |
2000 |
|
22 |
2/6 |
3/6 |
4/6 |
9/6 |
2 |
4 |
5 |
9 |
12 |
14 |
16 |
18 | ||
|
30 |
1/6 |
3/6 |
5/6 |
6/6 |
1 |
3 |
6 |
7 |
9 |
11 |
13 |
15 |
CF250 |
3300 |
|
37 |
2/6 |
4/6 |
6/6 |
7/6 |
2 |
4 |
5 |
8 |
10 |
12 |
14 |
16 | ||
|
45 |
1/6 |
5/6 |
7/6 |
8/6 |
1 |
3 |
6 |
7 |
8 |
10 |
12 |
14 |
CF300 |
5000 |
|
55 |
2/6 |
3/6 |
4/6 |
9/6 |
2 |
4 |
5 |
7 |
9 |
11 |
13 |
15 | ||
|
75 |
1/6 |
3/6 |
5/6 |
6/6 |
1 |
3 |
6 |
8 |
10 |
12 |
14 |
16 |
CF355 |
8000 |
|
90 |
2/6 |
4/6 |
6/6 |
7/6 |
2 |
4 |
6 |
9 |
11 |
13 |
15 |
17 | ||
|
110 |
1/6 |
5/6 |
7/6 |
9/6 |
1 |
5 |
7 |
9 |
11 |
14 |
17 |
20 |
CF400 |
12750 |
|
132 |
2/6 |
4/6 |
8/6 |
10/6 |
2 |
3 |
8 |
10 |
12 |
15 |
18 |
21 | ||
|
160 |
3/6 |
5/6 |
7/6 |
10/6 |
1 |
4 |
5 |
8 |
13 |
16 |
19 |
22 | ||
|
185 |
× |
6/6 |
8/6 |
11/6 |
2 |
5 |
6 |
9 |
11 |
14 |
17 |
20 |
CF475 |
20000 |
|
200 |
× |
× |
9/6 |
12/6 |
3 |
6 |
7 |
10 |
12 |
15 |
18 |
21 | ||
|
250 |
× |
× |
× |
× |
4 |
7 |
8 |
11 |
13 |
16 |
19 |
22 | ||
|
280 |
× |
× |
× |
× |
× |
× |
9 |
12 |
15 |
18 |
21 |
24 |
CF530 |
32500 |
|
315 |
× |
× |
× |
× |
× |
× |
10 |
13 |
16 |
19 |
22 |
25 | ||
|
355 |
× |
× |
× |
× |
× |
× |
× |
14 |
17 |
20 |
23 |
26 | ||
| 頁次:1/1 每頁10條 共3條信息 分頁:[1] |
