產品展示
內部逆止器FXN-過盈連接
適用高扭矩,高轉速
楔塊制動和非接觸式X功能

型號 |
零件號 |
理論額定扭矩 |
當偏心T.I.R存在時的額定扭矩 |
達到非接
觸式運轉
的最低轉速
min-1 |
最大
轉速
min-1 | ||||||||||||||||
↗ |
O |
A |
↗ |
0.1 |
A |
↗ |
0.2 |
A |
↗ |
0.3 |
A |
↗ |
0.4 |
A |
↗ |
0.5 |
A | ||||
Nm |
Nm |
Nm |
Nm |
Nm |
Nm | ||||||||||||||||
FXN31-17DX/60
FXN31-17DX/62
FXN38-17DX/70
FXN46-25DX/80
FXN51-25DX/85
FXN56-25DX/90
FXN61-19DX/95
FXN61-19DX/106
FXN66-25DX/100
FXN66-25DX/110
FXN76-25DX8115
FXN76-25DX/120
FXN86-25DX/125
FXN86-25DX/130
FXN101-25DX/140
FXN101-25DX/149
FXN101-25DX/150
FXN85-40SX/140
FXN85-40SX/150
FXN100-40SX/160
FXN105-50SX/165
FXN120-50SX/198
FXN170-63SX/258 |
4867.031.127
4867.031.128
4867.038.103
4867.046.101
4867.051.112
4867.056.105
4867.061.140
4867.061.135
4867.066.208
4867.066.209
4867.076.112
4867.076.105
4867.086.205
4867.086.207
4867.101.204
4867.101.208
4867.101.205
4867.085.111
4867.085.112
4867.100.110
4867.105.105
4867.120.516
4867.170.508 |
100
100
150
390
480
580
420
420
800
800
1050
1050
1350
1350
1700
1700
1700
1900
1900
2700
4000
6500
20000 |
100
100
140
380
470
570
410
410
780
780
1040
1040
1300
1300
1600
1600
1600
1900
1900
2600
3800
6300
19000 |
95
95
130
350
420
490
370
370
700
700
890
890
1030
1030
1400
1400
1400
1800
1800
2500
3500
5800
16000 |
-
-
-
-
-
-
-
-
-
-
-
-
-
-
-
-
-
1800
1800
2400
3300
4800
14000 |
-
-
-
-
-
-
-
-
-
-
-
-
-
-
-
-
-
1700
1700
2200
2900
4400
13000 |
-
-
-
-
-
-
-
-
-
-
-
-
-
-
-
-
-
1600
1600
2000
2800
3600
12000 |
890
890
860
820
750
730
750
750
700
700
670
670
630
630
610
610
610
430
430
400
380
320
250 |
5000
5000
5000
5000
5000
5000
5000
5000
5000
5000
5000
5000
5000
5000
5000
5000
5000
6000
6000
4500
4500
4000
2700 |
逆止器的最大扭矩是上表中額定扭矩的2倍。因此實際應用過程中的峰值扭矩不應超過額定扭矩的2倍。理論額定扭矩的計算是完全基于內外環絕對同心的基礎上進行的。而事實由于軸承的間隙或定位部件的誤差,在選擇額定扭矩時,應充分考慮到高速運轉下的實際偏心。
特點
該逆止器性能優越,相對較大的徑向跳允許值意味著該逆止器可以和圓錐滾子軸承或滑動軸承配合使用。非接觸式功能確保超長使用壽命。當轉速高于非接觸式轉速時,不需要任何特殊潤滑,即該產品是免維也納護的。
內部逆止器FXN-過盈連接
適用高扭矩,高轉速
楔塊制動和非接觸式X功能

型號 |
標準內孔直徑系列 |
A
mm |
B
mm |
D
mm |
F
mm |
J
mm |
K
min.
mm |
L
mm | ||||||
mm |
mm |
mm |
mm |
mm |
mm |
Max.
mm | ||||||||
FXN31-17DX/60
FXN31-17DX/62
FXN38-17DX/70
FXN46-25DX/80
FXN51-25DX/85
FXN56-25DX/90
FXN61-19DX/95
FXN61-19DX/106
FXN66-25DX/100
FXN66-25DX/110
FXN76-25DX8115
FXN76-25DX/120
FXN86-25DX/125
FXN86-25DX/130
FXN101-25DX/140
FXN101-25DX/149
FXN101-25DX/150
FXN85-40SX/140
FXN85-40SX/150
FXN100-40SX/160
FXN105-50SX/165
FXN120-50SX/198
FXN170-63SX/258 |
20*
20*
25*
25
25
35
30
30
35
35
45
45
40
40
55
70
55
45
45
45
80
60
70 |
-
-
-
-
30
-
35
35
40
40
55
55
45
45
70
-
70
50
50
50
-
65
85 |
-
-
-
-
35
-
40
40
45
45
-
-
50
50
-
-
-
60
60
55
-
70
100 |
-
-
-
-
-
-
-
-
-
-
-
-
60
60
-
-
-
65
65
65
-
75
120 |
-
-
-
-
-
-
-
-
-
-
-
-
65
65
-
-
-
-
-
70
-
80
- |
-
-
-
-
-
-
-
-
-
-
-
-
-
-
-
-
-
-
-
75
-
95
- |
20*
20*
25*
30
36
40
45*
45*
48*
48*
60*
60*
70*
70*
75
75
75
65
65
75
80
95
130 |
17
17
17
25
25
25
19
19
25
25
25
25
25
25
25
25
25
40
40
40
50
50
63 |
25
25
25
35
35
35
26
25
30
40
40
32
40
40
45
62
45
45
45
50
62
70
80 |
60 P6
62 P6
70 P6
80 P6
85 P6
90 P6
95 P6
106 H7
100 P6
110 P6
115 P6
120 J6
125 P6
130 P6
140 P6
149 H6
150 P6
140 P6
150 P6
160 P6
165 P6
198 H6
258 H6 |
55
55
62
70
75
80
85
85
90
90
100
100
110
110
125
125
125
125
125
140
145
160
210 |
31
31
38
46
51
56
61
61
66
66
76
76
86
86
101
101
101
85
85
100
105
120
170 |
85
85
90
95
105
110
120
120
132
132
140
140
150
150
175
175
175
175
175
190
195
210
290 |
24
24
24
35
35
35
25
25
35
35
35
35
40
40
50
62
50
60
60
60
62
70
80 |
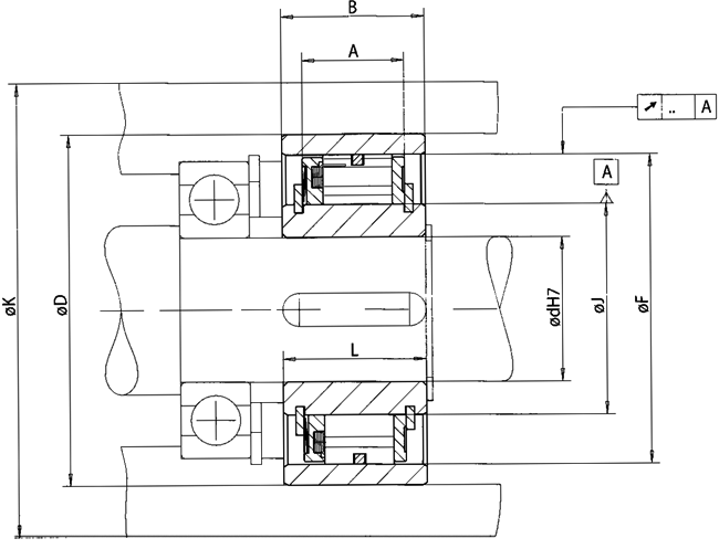
鍵槽寬度公差為IT10。
安裝指導:
由于該逆止器不帶軸承,安裝時應盡量保證內外環同心,不得超過額定扭矩表中規定的極限值。軸的公差要求為ISOh6或j6,和逆止器外環內孔公差要求見上表。
為了能夠達到表中的制動扭矩,我們建議和外環相配的箱體的內孔直徑為K(如圖所示),箱體的材質應為鋼質或最低灰鐵200的鑄鐵件。
頁次:1/1 每頁10條 共2條信息 分頁:[1] |