產品展示
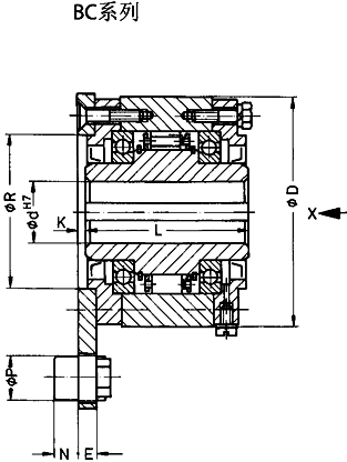
外部逆止器BA和BC
適用高扭矩,中轉速
楔塊制動和非接觸式X功能-油脂潤滑



|
型號 |
零件號 |
型號 |
零件號 |
最大額
定扭矩
Nm |
達到非接
觸式運轉
的最低轉
速min-1 |
最大
轉速
min-1 |
標準內孔
直徑系列 |
A
mm |
C
mm |
D
mm |
E
mm |
H
mm |
K
mm |
L
mm |
N
mm |
O
mm |
P
mm |
Q
mm |
R
mm |
S
| ||
|
mm |
min
mm |
max
mm | ||||||||||||||||||||
|
BA20DX
BA25DX
BA30DX
BA40SX
BA45SX
BA52SX
BA55SX
BA60SX
BA70SX
BA100SX |
6440.020.044
6440.025.044
6440.030.044
6440.040.044
6440.045.044
6440.052.044
6440.055.044
6440.060.044
6440.070.044
6440.100.044 |
BC20DX
BC25DX
BC30DX
BC40SX
BC45SX
BC52SX
BC55SX
BC60SX
BC70SX
BC100SX |
6440.020.043
6440.025.043
6440.030.043
6440.040.043
6440.045.043
6440.052.043
6440.055.043
6440.060.043
6440.070.043
6440.100.043 |
400
650
1100
1400
2300
4900
6500
14500
21000
42500 |
750
700
630
430
400
320
320
250
240
210 |
1700
1600
1600
1500
1500
1500
1250
1100
1000
750 |
30
40
50
60
65
80
90
100
120
150 |
20
25
30
40
45
50
50
60
70
100 |
30
40
50
60
70
80
90
105
120
150 |
110
126
155
190
210
230
255
295
335
420 |
90
100
120
150
160
190
200
220
260
380 |
106
126
151
181
196
216
246
291
312
411 |
8
8
10
12
14
14
15
20
25
45 |
80
90
120
160
175
200
210
250
280
345 |
2.5
2.5
3.5
5.5
7.5
4.5
3.5
8.5
14.5
31.5 |
77
93
102
116
130
150
170
206
215
276 |
11
11
16
22
26
26
29
35
39
60 |
104
125
140
160
176
208
228
273
291
372 |
19.5
19.5
27.5
37.5
41.5
41.5
49.5
60.5
65.5
80.5 |
65
75
95
130
140
160
170
200
225
280 |
70
80
100
120
130
150
160
190
210
270 |
M10
M12
M16
M16
M16
M20
M20
M24
M24
M30 |
鍵槽寬度公差為IT10,逆止器的最大扭矩是上表中最大額定扭矩2倍。因此實際應用過程式中的峰值扭矩不應超過最大額定扭矩的2倍。
特點:
BA系列逆止器一般裝配在軸端,并帶有軸向鎖緊。
BC系列逆止器一般裝配在過軸,不帶有軸向鎖緊。
扭力臂通過螺栓固定在箱體上,假如釋放螺栓,逆止器可自由轉動。
安裝指導:
扭力臂通過螺栓固定在箱體上,并保證螺栓和扭力臂之間徑向和軸向有0.5到mm的間隙。對該逆止器來說,內環必須通過壓盤和軸固定。假如需要,壓盤和螺栓是可以成套供應的。
軸的公差建議為ISOh6或j6。在裝配前,請仔細閱讀裝配指導。
旋向:
在訂單中應指定軸或內環的旋向(沿X向如圖所示)。通過調換扭力臂和端蓋的位置可以使旋向相反。
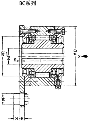
外部逆止器BA和BC
適用高扭矩,低轉速
滾柱制動-油脂潤滑



|
型號 |
零件號 |
型號 |
零件號 |
額定
扭矩
Nm |
最大
轉速
min-1 |
標準內孔直徑系列 |
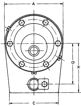
A
mm |
C
mm |
D
mm |
E
mm |
H
mm |
K
mm |
L
mm |
N
mm |
O
mm |
P
mm |
Q
mm |
R
mm |
S
mm | ||
|
mm |
min
mm |
max
mm | |||||||||||||||||||
|
BA12R
BA15R
BA18R
BA20R
BA25R
BA28R
BA30R
BA35R
BA40R
BA45R
BA50R
BA52R
BA55R
BA60R
BA70R
BA80R
BA90R
BA95R
BA100 |
6430.012.034
6430.015.034
6430.018.034
6430.020.034
6430.025.034
6430.028.034
6430.030.034
6430.035.034
6430.040.034
6430.045.034
6430.050.034
6430.052.034
6430.055.034
6430.060.034
6430.070.034
6430.080.034
6430.090.034
6430.095.034
6430.100.034 |
BC12R
BC15R
BC18R
BC20R
BC25R
BC28R
BC30R
BC35R
BC40R
BC45R
BC50R
BC52R
BC55R
BC60R
BC70R
BC80R
BC90R
BC95R
BC100 |
6430.012.033
6430.015.033
6430.018.033
6430.020.033
6430.025.033
6430.028.033
6430.030.033
6430.035.033
6430.040.033
6430.045.033
6430.050.033
6430.052.033
6430.055.033
6430.060.033
6430.070.033
6430.080.033
6430.090.033
6430.095.033
6430.100.033 |
150
230
340
420
800
1200
1600
1800
3500
7100
7500
9300
12500
14500
22500
25000
33500
35000
57500 |
1750
1650
1550
1450
1250
1100
1000
900
800
750
700
650
550
500
425
375
350
300
250 |
15
20
25
30
40
45
50
55
60
65
70
80
90
100
120
130
140
150
150 |
12
15
18
20
25
25
30
35
40
45
50
50
50
60
70
80
90
90
100 |
15
20
25
30
40
45
50
55
60
70
75
80
90
100
120
130
140
150
150 |
71
81
96
110
126
140
155
170
190
210
220
230
255
295
335
360
385
400
420 |
50
60
70
90
100
110
120
130
150
160
180
190
200
220
260
280
300
350
380 |
71
81
96
106
126
136
151
161
181
196
206
216
246
291
321
351
371
391
411 |
8
8
8
8
8
10
10
10
12
14
14
14
15
20
25
30
35
40
45 |
53
62
73
80
90
105
120
140
160
175
185
200
210
250
280
280
310
310
345 |
4.5
4.5
4.5
2.5
2.5
3.5
3.5
3.5
5.5
7
7
4.5
3.5
8.5
14
18.5
22.5
27.5
31.5 |
68
70
70
77
93
95
102
110
116
130
132
150
170
206
216
224
236
249
276 |
8.5
8.5
8.5
11
11
14
16
19
22
26
26
26
29
35
39
39
55
55
60 |
91
93
96
104
125
129
140
151
160
176
178
208
228
273
291
302
314
337
372 |
11.5
13.5
15.5
19.5
19.5
24.5
27.5
33.5
37.5
41.5
41.5
41.5
49.5
60
65
65
70
70
80 |
42
50
60
65
75
85
95
112
130
140
150
160
170
200
225
225
250
250
280 |
45
50
60
70
80
90
100
110
120
130
140
150
160
190
210
220
240
250
270 |
M6
M6
M10
M10
M12
M12
M16
M16
M16
M16
M16
M20
M20
M24
M24
M24
M30
M30
M30 |
鍵盤槽寬度公差為IT10。逆止器的最大扭矩是上表中最大額定扭矩的2倍。因此實際應用過程中的峰值扭矩不應超過最大額定扭矩的2倍。
特點:
BA系列逆止器一般裝配在軸端,并帶有軸向鎖緊。
BC系列逆止器一般裝配在過軸,不帶有軸向鎖緊。
扭力臂通螺栓固定在箱體上,假如釋放螺栓,逆止器可自由轉動。
安裝指導:
扭力臂通過螺栓固定在箱體上,并保證螺栓和扭力臂之間徑向和軸向有0.5到2mm的間隙。對該逆止器來說,內環必須通過壓盤和軸固定。假如需要,壓盤和螺栓是可以成套供應的。
軸的公差建議為ISOh6或j6。在裝配前,請仔細閱讀裝配指導。
旋向:
在訂單中應指定軸或內環的旋向(沿X向如圖所示)。通過調換扭力臂和端蓋的位置可以使旋向相反。
| 頁次:1/1 每頁10條 共2條信息 分頁:[1] |
