Product list產品列表
Customer service在線客服
產品展示
本機應用范圍及結構概況
1、應用范圍及優點:
本機廣泛應用于各種起重、運輸、礦山機械及其它各種機械中作減速之用。其聯動方式,可用聯軸器直接聯動,也可用三角皮帶撓性聯動。
本機通用性和互換性強,維修簡單,效率系數為0.94,具有起動阻力小,運動靈活等優點。
2、結構概況及主要零部件:
本機結構型式為兩級三軸圓柱斜齒水平分割全封式。潤滑油盛于減速機之內部,在主動軸和中間軸上設有擋油板,各軸支點均用滾動軸承,其軸向間隙,可用內部調整環調整之,本機上部有一檢查蓋,下部有油標指針和排廢油用的油塞。
齒輪和軸均用優質炭素鋼制造,并經調質處理,齒輪多用高級鑄造鋼制造,并經正火處理,箱體材料為灰鑄鐵HT-200并經時效處理,齒輪按8級精度制造的滾切斜齒,傾斜角為8°6′34″,兩配偶齒輪齒數和為99牙。
本機齒輪具有下列法向模數MH和齒寬B表一
|
減速機型號JZQ |
250 |
350 |
400 |
500 |
650 |
750 |
850 |
1000 | |
|
Ⅰ級 |
MHI |
2 |
3 |
3 |
4 |
5 |
6 |
7 |
8 |
|
BI |
40 |
60 |
60 |
80 |
100 |
120 |
140 |
| |
|
Ⅱ級 |
MH2 |
3 |
4 |
5 |
6 |
8 |
9 |
10 |
12 |
|
B2 |
60 |
80 |
100 |
120 |
160 |
180 |
200 |
| |
主要規格
本系列減速機按大小、速比、裝配形式分如下幾種:
1、按主動軸、被動軸中心距分八種型號:JZQ250、JZQ350、JZQ400、JZQ500、JZQ650 、JZQ750、JZQ850、JZQ1000。
2、按速比大小、每種型號又分以下九種速比。(表二)

3、按主動軸和被動軸的裝配方法,又分九種裝配形式。(圖一)

4、軸承目錄
|
減速機型號 |
軸承型號 | |||||||||
|
406 |
412 |
408 |
317 |
220 |
410 |
412 |
7318 |
7526 |
7530 | |
|
數量 | ||||||||||
|
JZQ250 |
4 |
2 |
|
|
|
|
|
|
|
|
|
JZQ350 |
|
2 |
4 |
|
|
|
|
|
|
|
|
JZQ400 |
|
2 |
2 |
2 |
|
|
|
|
|
|
|
JZQ500 |
|
|
|
4 |
|
2 |
|
|
|
|
|
JZQ650 |
|
|
|
|
|
|
2 |
3 |
1 |
|
|
JZQ750 |
|
|
|
|
|
|
2 |
3 |
1 |
|
|
JZQ850 |
|
|
|
|
|
|
|
2 |
3 |
1 |
|
JZQ1000 |
|
|
|
|
|
|
|
|
|
|
功率表
|
減速機高速軸功率(千瓦) | ||||||||||
|
每分
鐘轉
速 |
工作
延注
時間
率 |
傳動比代號 | ||||||||
|
Ⅰ |
Ⅱ |
Ⅲ |
Ⅳ |
Ⅴ |
Ⅵ |
Ⅶ |
Ⅷ |
Ⅸ | ||
|
傳動比i | ||||||||||
|
48.57 |
40.17 |
31.50 |
23.34 |
20.49 |
15.75 |
12.64 |
10.35 |
8.23 | ||
|
JZQ250型減速機 | ||||||||||
|
750 |
25% |
1.3 |
1.5 |
1.9 |
2.7 |
3.1 |
3.5 |
4.0 |
4.8 |
5.4 |
|
40% |
1.1 |
1.3 |
1.6 |
2.3 |
2.6 |
3.0 |
3.4 |
4.0 |
4.6 | |
|
100% |
0.4 |
0.5 |
0.7 |
0.9 |
1.0 |
1.4 |
1.8 |
2.2 |
2.8 | |
|
1000 |
25% |
1.6 |
2.1 |
2.3 |
3.1 |
3.5 |
4.0 |
4.8 |
5.4 |
5.9 |
|
40% |
1.4 |
1.8 |
2.0 |
2.6 |
3.0 |
3.4 |
4.4 |
4.6 |
5.0 | |
|
100% |
0.55 |
0.65 |
0.9 |
1.2 |
1.4 |
2.0 |
2.4 |
3.0 |
3.75 | |
|
1500 |
25% |
2.1 |
2.5 |
2.7 |
3.7 |
4.4 |
4.8 |
5.5 |
6.1 |
6.7 |
|
40% |
1.8 |
2.1 |
2.3 |
3.1 |
3.7 |
4.1 |
4.7 |
5.2 |
5.7 | |
|
100% |
0.8 |
0.95 |
1.35 |
1.8 |
2.0 |
3.0 |
3.8 |
4.5 |
5.0 | |
|
JZQ350型減速機 | ||||||||||
|
750 |
25% |
3.0 |
3.6 |
5.0 |
6.5 |
7.1 |
9.7 |
14.0 |
13.2 |
15.2 |
|
40% |
2.6 |
3.1 |
4.3 |
5.5 |
6.1 |
8.3 |
11.9 |
11.2 |
12.9 | |
|
100% |
0.95 |
1.1 |
1.5 |
2.0 |
2.3 |
3.4 |
5.7 |
5.6 |
6.5 | |
|
1000 |
25% |
4.0 |
4.8 |
6.5 |
8.3 |
9.2 |
12 |
18.2 |
15.7 |
18.6 |
|
40% |
3.5 |
4.0 |
5.5 |
7.1 |
7.8 |
10.3 |
15.5 |
13.3 |
5.8 | |
|
100% |
1.25 |
1.5 |
2.0 |
2.7 |
3.1 |
4.6 |
8.5 |
7.0 |
8.7 | |
|
1500 |
25% |
5.8 |
6.8 |
9.3 |
11.3 |
12.9 |
15.7 |
18.2 |
21 |
23.5 |
|
40% |
4.9 |
5.8 |
7.9 |
9.6 |
11.0 |
13.4 |
15.5 |
17.8 |
20.2 | |
|
100% |
1.9 |
2.3 |
3.0 |
4.1 |
4.6 |
6.9 |
8.5 |
9.5 |
13.1 | |
|
JZQ400型減速機 | ||||||||||
|
750 |
25% |
4.5 |
5.7 |
6.6 |
9.1 |
10.4 |
11.5 |
13.6 |
15.6 |
18.3 |
|
40% |
3.8 |
4.9 |
5.6 |
7.7 |
8.9 |
9.8 |
11.6 |
13.3 |
15.5 | |
|
100% |
1.9 |
2.2 |
3.1 |
4.2 |
4.8 |
6.7 |
8.4 |
10.2 |
12.8 | |
|
1000 |
25% |
4.0 |
7.0 |
7.9 |
10.6 |
11.7 |
13.4 |
16.2 |
18.3 |
19.7 |
|
40% |
4.3 |
5.9 |
6.7 |
9.0 |
9.5 |
11.4 |
13.8 |
15.6 |
17.3 | |
|
100% |
2.5 |
3.0 |
4.1 |
5.6 |
6.4 |
8.5 |
11.1 |
13.5 |
16.0 | |
|
1500 |
25% |
7.0 |
8.6 |
9.4 |
13.0 |
14.7 |
16.4 |
18.6 |
20.5 |
22.5 |
|
40% |
5.9 |
7.3 |
8.0 |
11.0 |
12.5 |
13.9 |
16.1 |
18.7 |
22.0 | |
|
100% |
2.7 |
4.3 |
6.2 |
8.5 |
9.7 |
12.7 |
15.8 |
17.4 |
19.2 | |
|
JZQ500型減速機 | ||||||||||
|
750 |
25% |
10.1 |
12.0 |
15.1 |
21.0 |
24.0 |
27.0 |
32.0 |
37.0 |
42.5 |
|
40% |
8.6 |
10.2 |
12.8 |
18.1 |
20.4 |
23.0 |
27.0 |
31.5 |
36.0 | |
|
100% |
3.3 |
3.8 |
5.4 |
7.3 |
8.3 |
11.5 |
14.4 |
17.6 |
22.1 | |
|
1000 |
25% |
12.7 |
15.7 |
18.1 |
24.5 |
27.5 |
31.0 |
37.5 |
42.0 |
46.0 |
|
40% |
10.8 |
13.4 |
15.4 |
20.5 |
23.0 |
26.0 |
32.0 |
35.5 |
39.0 | |
|
100% |
4.3 |
5.2 |
7.2 |
9.7 |
11.0 |
15.4 |
19.2 |
23.5 |
26.8 | |
|
1500 |
25% |
16.3 |
20.2 |
22.5 |
32.0 |
34.5 |
38.0 |
43.5 |
47.5 |
52.5 |
|
40% |
13.9 |
17.0 |
19.2 |
27.0 |
29.0 |
32.0 |
37.0 |
40.5 |
44.5 | |
|
100% |
6.4 |
7.8 |
10.8 |
14.6 |
16.6 |
23.0 |
26.0 |
32.5 |
40.5 | |
|
JZQ650型減速機 | ||||||||||
|
750 |
25% |
20.5 |
26 |
29 |
41 |
47.5 |
53 |
62 |
73 |
83 |
|
40% |
17.4 |
22 |
24.5 |
35 |
40.5 |
44.5 |
52.5 |
62 |
70 | |
|
100% |
7.76 |
9.2 |
12.8 |
17.4 |
19.5 |
27.5 |
35 |
42 |
43 | |
|
1000 |
25% |
25 |
31.5 |
35.5 |
48 |
56 |
60 |
73 |
83 |
60 |
|
40% |
21 |
26.5 |
30 |
40.5 |
47 |
51 |
62.5 |
70 |
76 | |
|
100% |
10.1 |
12.3 |
17 |
23 |
26.5 |
37 |
46 |
50.5 |
64 | |
|
1500 |
25% |
32 |
38.5 |
42 |
60 |
70 |
74 |
84 |
93 |
101.5 |
|
40% |
27 |
33 |
36 |
51 |
60 |
63 |
71 |
79 |
96.5 | |
|
100% |
15.2 |
18.4 |
25.5 |
34.5 |
39.5 |
50 |
63 |
70 |
86 | |
|
JZQ750型減速機 | ||||||||||
|
750 |
25% |
34.5 |
41 |
52 |
73 |
83 |
93 |
110 |
128 |
146 |
|
40% |
29.5 |
35 |
44.5 |
62 |
70 |
79 |
94 |
109 |
142 | |
|
100% |
11 |
13.1 |
18.2 |
24.5 |
28 |
39 |
48.5 |
60 |
68 | |
|
1000 |
25% |
44 |
54 |
63 |
85 |
94 |
105 |
130 |
146 |
158 |
|
40% |
37 |
46 |
53 |
72 |
80 |
90 |
110 |
124 |
134 | |
|
100% |
14.5 |
17.5 |
23.8 |
35 |
37.5 |
52 |
59 |
72 |
90 | |
|
1500 |
25% |
56 |
69 |
75 |
104 |
118 |
130 |
149 |
156 |
|
|
40% |
48 |
59 |
63 |
89 |
110 |
111 |
127 |
133 |
| |
|
100% |
12.5 |
26.5 |
36.5 |
49 |
56 |
71 |
88 |
108 |
| |
|
JZQ850型減速機 | ||||||||||
|
750 |
25% |
47.5 |
57 |
77 |
101 |
114 |
151 |
174 |
205 |
230 |
|
40% |
40.5 |
48.5 |
65 |
86 |
97 |
128 |
148 |
174 |
195 | |
|
100% |
15.2 |
17.9 |
25 |
33.5 |
38.5 |
54 |
67 |
75 |
94 | |
|
1000 |
25% |
63 |
57 |
100 |
126 |
141 |
168 |
205 |
234 |
252 |
|
40% |
54 |
64 |
85 |
110 |
120 |
143 |
174 |
199 |
214 | |
|
100% |
21.3 |
24 |
33 |
45 |
51 |
72 |
82 |
99 |
125 | |
|
1500 |
25% |
90 |
106 |
119 |
162 |
180 |
210 |
238 |
|
|
|
40% |
76 |
90 |
101 |
138 |
153 |
179 |
202 |
|
| |
|
100% |
29.6 |
35.5 |
50 |
68 |
70 |
98 |
121 |
|
| |
|
JZQ1000型減速機 | ||||||||||
|
750 |
25% |
82 |
98 |
124 |
171 |
196 |
220 |
260 |
305 |
342 |
|
40% |
69 |
83 |
105 |
145 |
166 |
188 |
220 |
260 |
290 | |
|
100% |
26 |
31.5 |
43.5 |
58.5 |
66 |
92 |
105 |
129 |
160 | |
|
1000 |
25% |
104 |
127 |
148 |
205 |
220 |
250 |
306 |
346 |
367 |
|
40% |
88 |
108 |
126 |
173 |
188 |
215 |
260 |
294 |
312 | |
|
100% |
34.5 |
41.8 |
58 |
78 |
89 |
113 |
140 |
110 |
216 | |
|
1500 |
25% |
132 |
163 |
1.6 |
246 |
281 |
302 |
|
|
|
|
40% |
112 |
138 |
148 |
209 |
238 |
258 |
|
|
| |
|
100% |
51.5 |
62 |
87 |
106 |
121 |
175 |
|
|
| |
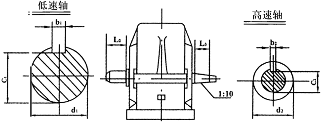
JZQ型圓柱齒輪減速機軸端尺寸

|
型號 |
接 軸 尺 寸 | |||||||
|
低 速 軸 |
高 速 軸 | |||||||
|
d1 |
b1 |
c1 |
L2 |
d2 |
b2 |
c2 |
L2 | |
|
JZQ250 |
ф55 |
18 |
47 |
83 |
ф30 |
8 |
9.5 |
58 |
|
JZQ350 |
ф55 |
18 |
47 |
83 |
ф40 |
12 |
13.5 |
82 |
|
JZQ400 |
ф80 |
28 |
67 |
123 |
ф40 |
12 |
13.5 |
82 |
|
JZQ500 |
ф80 |
28 |
67 |
123 |
ф50 |
16 |
8 |
82 |
|
JZQ650 |
ф110 |
36 |
100 |
163 |
ф60 |
18 |
22 |
105 |
|
JZQ750 |
ф110 |
36 |
100 |
163 |
ф60 |
18 |
22 |
105 |
|
JZQ850 |
ф130 |
36 |
113 |
198 |
ф90 |
24 |
35 |
130 |
|
JZQ1000 |
ф150 |
40 |
137 |
238 |
ф90 |
24 |
35 |
130 |
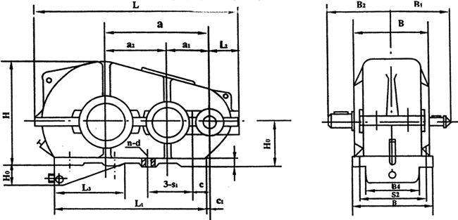
JZQ型圓柱齒輪減速機基本尺寸

|
型號 |
中心距 |
中心高
H0 |
最大外形尺寸 |
軸端尺寸 |
L1 |
L2 |
L3 |
B4 |
H1 |
g |
安裝尺寸 |
最大
質量
kg | ||||||||||
|
a |
a1 |
a2 |
L |
B |
H |
高速軸
B1 |
低速軸
B2 |
C |
C1 |
孔距 |
孔徑
d |
孔數
n | ||||||||||
|
S1 |
S2 | |||||||||||||||||||||
|
JZQ250 |
250 |
100 |
150 |
160-00.5 |
540 |
230 |
313 |
200 |
218 |
345 |
101 |
- |
- |
- |
20 |
60 |
28 |
235 |
190 |
17 |
4 |
100 |
|
JZQ350 |
350 |
150 |
200 |
200-00.5 |
730 |
290 |
440 |
260 |
248 |
470 |
132 |
- |
- |
- |
25 |
100 |
40 |
310 |
250 |
17 |
4 |
200 |
|
JZQ400 |
400 |
150 |
250 |
250-00.5 |
826 |
310 |
490 |
270 |
303 |
490 |
133 |
- |
- |
- |
25 |
110 |
80 |
370 |
370 |
17 |
4 |
250 |
|
JZQ500 |
500 |
200 |
300 |
300-00.5 |
986 |
350 |
587 |
330 |
323 |
645 |
148 |
- |
- |
- |
25 |
130 |
80 |
240 |
310 |
17 |
6 |
390 |
|
JZQ650 |
650 |
250 |
400 |
320-01.5 |
1278 |
470 |
695 |
430 |
428 |
830 |
183 |
495 |
324 |
100 |
30 |
160 |
85 |
215 |
410 |
25 |
8 |
880 |
|
JZQ750 |
750 |
300 |
450 |
320-01.5 |
1448 |
510 |
740 |
450 |
445 |
1020 |
206 |
620 |
364 |
135 |
35 |
155 |
55 |
275 |
450 |
25 |
8 |
1100 |
|
JZQ850 |
850 |
350 |
500 |
400-01.5 |
1632 |
580 |
875 |
510 |
523 |
1100 |
236 |
610 |
418 |
105 |
38 |
155 |
75 |
300 |
520 |
32 |
8 |
1500 |
|
JZQ1000 |
1000 |
400 |
600 |
400-01.5 |
1896 |
660 |
965 |
550 |
603 |
1350 |
257 |
870 |
478 |
200 |
40 |
200 |
100 |
350 |
590 |
32 |
8 |
2230 |
資料整理中
| 頁次:1/1 每頁10條 共6條信息 分頁:[1] |
