產品展示
一、概述
YTDT系列電梯用異步電動機適用于各種交流調速客貨電梯及普通客貨電梯,還用于需要遠極比軸向連接的雙速電動機的驅動及頻繁起動的各種裝置。
該電動機具有振動小、噪聲低、機械特性硬度好、控制簡單、運行平穩等特點。該電動機的功率等級、安裝尺寸符合IEC標準和國家標準的有關規定。
電動機在規定的轉動慣量范圍內,允許每小起動180次,負載持續率為60%。
型號含義

二、結構簡介
YTDT系列為雙繞組雙速電動機,有4/16和6/24兩種速比,三個機座號。電機繞組內埋有熱敏元件,轉子為籠型深槽結構。該電動機帶鼓風機,采用強迫通風方式。軸承均為滑動軸承,電機端蓋上并設有加油孔、放油孔和觀察窗,便于維修和加油。
電動機的輔助伸端有測速發電機,做所饋之用。
電動機接線盒有6個出線端子,分別供4(6)極、16(24)極接線之用,電機在高速、低速時均為Y聯結。
電動機的安裝結構型式為B3,雙軸伸,一端供傳動用,另一端供安裝飛輪。
主要技術數據
YTDT系列電動機的轉矩、轉速特性(T-S曲線)(見圖1);電動機采用能耗制動時的特性曲線(低速時繞組通以不同的直流電可獲得不同的制動轉矩)(見圖2)。

圖1

圖2
電動機制噪聲聲壓級數據[dB(A)],見表1。
表1 (單位:dB(A))
型號 |
4 |
6 |
加風機 |
YTDT200
YTDT225
YTDT250 |
65
66
68 |
59
60
62 |
67
67
70 |
電動機振動速度有效值:4極小于1.8mm/s,6極小于1.12 mm/s(空載時)。
表2 YTDT系列主要技術數據表(380V,50Hz)
型 號 |
額定
功率
/kW |
額定
電壓
/V |
額定
電流
/A |
同步
轉速
/(r/min) |
堵轉轉矩 |
堵轉電流 |
轉差率(%) | |||
額定轉矩 |
額定電流 | |||||||||
高速 |
低速 |
高速 |
低速 |
高速 |
低速 | |||||
YTDT200M1-4/6
200M2-4/16
200M-6/24
200L-4/16
200L-6/24
225M1-4/16
225M2-4/16
225M1-6/24
225M2-6/24
225L1-4/16
225L2-4/16
225L-6/24
250M1-4/16
250M2-4/16
250M1-6/24
250M2-6/24
250L1-4/16
250L1-624
250L2-6/24 |
4.0
5.5
4.0
7.5
5.5
11
15
7.5
11
18.5
22
15
25
30
18.5
22
37
25
30 |
380
380
380
380
380
380
380
380
380
380
380
380
380
380
380
380
380
380
380 |
12
15
12
20
15
26
36
23
30
43
49
38
55
63
45
52
82
58
69 |
1500
1500
1000
1500
1000
1500
1500
1000
1000
1500
1500
1000
1500
1500
1000
1000
1500
1000
1000 |
2.2
2.2
2.2
2.2
2.2
2.2
2.2
2.2
2.2
2.2
2.2
2.2
2.2
2.2
2.2
2.2
2.2
2.2
2.2 |
1.6
1.6
1.6
1.6
1.6
1.6
1.6
1.6
1.6
1.6
1.6
1.6
1.6
1.6
1.6
1.6
1.6
1.6
1.6 |
4
4
4
4
4
4
4
4
4
4
4
4
4
4
4
4
4
4
4 |
1.5
1.5
1.5
1.5
1.5
1.5
1.5
1.5
1.5
1.5
1.5
1.5
1.5
1.5
1.5
1.5
1.5
1.5
1.5 |
8~12
8~12
8~12
8~12
8~12
8~12
8~12
8~12
8~12
8~12
8~12
8~12
8~12
8~12
8~12
8~12
8~12
8~12
8~12 |
13~20
13~20
13~20
13~20
13~20
13~20
13~20
13~20
13~20
13~20
13~20
13~20
13~20
13~20
13~20
13~20
13~20
13~20
13~20 |
注:表中的功率、電流、轉速指高速時的數值。
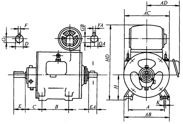
YTDT系列外形尺寸圖(IMB3)

YTDT系列(IMB3) (單位:mm)
中心高 |
A |
B |
C |
D |
E |
EA |
F |
FA |
G |
GB |
H |
K |
AB |
AC |
AD |
HD |
200M |
318 |
267 |
133 |
42 |
110 |
12 |
37 |
200 |
ф19 |
400 |
400 |
320 |
720 | |||
200L |
305 | |||||||||||||||
225M |
356 |
311 |
149 |
55 |
16 |
49 |
225 |
450 |
450 |
360 |
760 | |||||
225L |
356 | |||||||||||||||
250M |
406 |
349 |
168 |
65 |
140 |
18 |
58 |
250 |
ф24 |
500 |
500 |
410 |
820 | |||
250L |
406 |
YTDT系列外形尺寸圖(IMB5)

YTDT系列(IMB5) (單位:mm)
中心高 |
凸緣號 |
D |
DA |
E |
EA |
F |
FA |
G |
GB |
M |
N |
P |
R |
T |
S |
凸緣孔數 |
AC |
AD |
HF |
200M
200L |
FF400 |
42 |
110 |
12 |
37 |
400 |
350±0.018 |
450 |
45 |
5 |
19 |
8 |
400 |
320 |
520 | ||||
225M
225L |
FF500 |
55 |
110 |
16 |
49 |
500 |
450±0.020 |
500 |
45 |
5 |
19 |
8 |
450 |
360 |
560 | ||||
250M
250L |
FF500 |
65 |
140 |
18 |
58 |
600 |
550±0.022 |
550 |
55 |
6 |
24 |
8 |
500 |
410 |
600 |
頁次:1/1 每頁10條 共3條信息 分頁:[1] |