 |
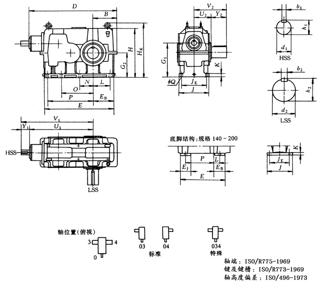
3KC140N~400N型三級錐齒輪—斜齒輪減速機外形尺寸 |
 |
|
詳細介紹: |
發布時間:2006/10/31 9:50:14 |
|
|
3KC140N~400N型三級錐齒輪—斜齒輪減速器
此類減速器見下表。

外 形 尺 寸
減速器型號 |
減速箱尺寸/mm |
重量/kg |
油量/L |
B |
D |
E |
EB |
EJ |
G1 |
G2 |
H |
HK |
J |
JE |
K |
L |
N |
O |
P |
Q |
3KC140N
3KC160N |
160
175 |
561.4
625.5 |
409
468 |
104
113 |
114
125 |
270.1
302.1 |
200
225 |
380
425 |
433
478 |
220
260 |
182
210 |
20
25 |
46
50 |
-
- |
-
- |
248
292 |
19
24 |
105
145 |
7.6
10 |
3KC180N
3KC200N |
205
225 |
711.1
800.0 |
521
582 |
131
152 |
140
150 |
336.7
366.6 |
250
280 |
475
530 |
537
592 |
280
320 |
225
250 |
25
30 |
60
77 |
-
- |
-
- |
320
355 |
24
28 |
200
280 |
14
20 |
3KC225N
3KC250N |
255
281 |
907.5
1007.9 |
692
771 |
200
225 |
-
- |
376.7
390.7 |
280
280 |
560
560 |
631
631 |
325
355 |
265
286 |
40
45 |
165
192 |
135
145 |
-
- |
455
510 |
28
28 |
380
510 |
35
46 |
3KC280N
3KC315N |
308
353 |
1120.8
1268.1 |
862
963 |
252
286 |
-
- |
437.8
496.4 |
315
355 |
630
710 |
701
800 |
380
424 |
314
350 |
50
56 |
215
245 |
170
175 |
-
435 |
575
640 |
28
35 |
720
1000 |
64
87 |
3KC355N
3KC400N |
400
448 |
1423.8
1596.5 |
1097
1215 |
326
365 |
-
- |
558.0
625.2 |
400
450 |
800
900 |
890
990 |
500
550 |
410
450 |
63
71 |
275
310 |
185
210 |
520
560 |
720
800 |
35
42 |
1350
1900 |
116
164 |
減速器型號 |
軸尺寸/mm |
輸入軸 |
|
19<i≤47 |
47<i≤67 |
U1 |
Y1 |
V1 |
d1 |
b1 |
h1 |
Y1 |
V1 |
d1 |
b1 |
h1 |
3KC140N
3KC160N |
401.4
450.5 |
58
58 |
459.4
508.5 |
30k6
35k6 |
8h9
10h9 |
33
38 |
36
42 |
437.4
492.5 |
22k6
25k6 |
6h9
8h9 |
24.5
28 |
3KC180N
3KC200N |
506.1
575.0 |
82
82 |
588.1
657.0 |
40k6
45k6 |
12h9
14h9 |
43
48.5 |
58
58 |
564.1
633.0 |
30k6
35k6 |
8h9
10h9 |
33
38 |
3KC225N
3KC250N |
652.5
726.9 |
82
82 |
734.5
808.9 |
50k6
55m6 |
14h9
16h9 |
53.5
59 |
82
82 |
734.5
808.9 |
40k6
45k6 |
12h9
14h9 |
43
48.5 |
3KC280N
3KC315N |
812.8
915.1 |
105
105 |
917.8
1020.1 |
60m6
65m6 |
18h9
18h9 |
64
69 |
82
82 |
894.8
997.1 |
50k6
55m6 |
14h9
16h9 |
53.5
59 |
3KC355N
3KC400N |
1023.8
1148.5 |
105
130 |
1128.8
1278.5 |
70m6
80m6 |
20h9
22h9 |
74.5
85 |
105
105 |
1128.8
1253.5 |
60m6
65m6 |
18h9
18h9 |
64
69 |
減速器型號 |
軸尺寸/mm |
輸入軸 |
輸出軸 |
67<i≤95 |
Y1 |
V1 |
d1 |
b1 |
h1 |
U2 |
Y2 |
V2 |
d2 |
b2 |
h2 |
3KC140N
3KC160N |
28
28 |
429.4
478.5 |
16k6
18k6 |
5h9
6h9 |
18
20.5 |
120
140 |
105
105 |
225
245 |
65m6
75m6 |
18h9
20h9 |
69
79.5 |
3KC180N
3KC200N |
36
36 |
542.1
611.0 |
20k6
22k6 |
6h9
6h9 |
22.5
24.5 |
145
155 |
130
130 |
275
285 |
85m6
95m6 |
22h9
25h9 |
90
100 |
3KC225N
3KC250N |
42
58 |
694.5
784.9 |
25k6
30k6 |
8h9
8h9 |
28
33 |
175
195 |
165
165 |
340
360 |
110m6
120m6 |
28h9
32h9 |
116
127 |
3KC280N
3KC315N |
58
82 |
870.8
997.1 |
35k6
40k6 |
10h9
12h9 |
38
43 |
215
240 |
200
200 |
415
440 |
140m6
150m6 |
36h9
36h9 |
148
158 |
3KC355N
3KC400N |
82
82 |
1105.8
1230.5 |
45k6
50k6 |
14h9
14h9 |
48.5
53.5 |
265
300 |
240
280 |
505
580 |
170m6
190m6 |
40h9
45h9 |
179
200 | |
|
|