 |
DJ型機架外形安裝尺寸CD130B—86 |
 |
| |
詳細介紹: |
發布時間:2006/4/27 13:07:25 |
|
| |
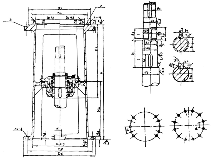
DJ型機架外形安裝尺寸


|
機架代號 |
標準圖號 |
H |
H1 |
H2 |
H3 |
H4 |
H5 |
H6 |
輸入端接口 |
輸出端接口 |
軸承型號 |
機架總量
(kg) |
|
D1 |
D2 |
D3 |
n1-M |
D4 |
D5 |
D6 |
a |
n2-ф |
|
DJ-30A B |
CD130B7·1 |
550 |
320 |
300 |
15 |
20 |
4 |
6 |
A140
B200 |
A160
B230 |
A190
B260 |
A4-M10
B6-M12 |
240 |
285 |
315 |
20 |
10-ф14 |
46210 |
46 |
|
DJ-35 A |
CD130B7·2 |
600 |
334 |
340 |
15 |
20 |
5 |
6 |
170 |
200 |
230 |
6-M10 |
260 |
320 |
360 |
20 |
10-ф14 |
46212 |
65 |
|
DJ-40 B |
CD130B7·3 |
600 |
334 |
340 |
15 |
20 |
4 |
6 |
230 |
260 |
290 |
6-M12 |
260 |
320 |
360 |
20 |
10-ф14 |
46212 |
65 |
|
DJ-45 A |
CD130B7·4 |
600 |
338 |
340 |
15 |
24 |
5 |
6 |
200 |
230 |
260 |
6-M10 |
260 |
320 |
360 |
20 |
10-ф14 |
46214 |
72 |
|
DJ-55A B |
CD130B7·5 |
660 |
372 |
370 |
20 |
24 |
A6
B5 |
6 |
270 |
A310
B305 |
340 |
A6-M10
B8-M16 |
325 |
400 |
435 |
30 |
12-ф14 |
46216 |
105 |
|
DJ-65 A |
CD130B7·6 |
720 |
447 |
370 |
20 |
24 |
6 |
6 |
316 |
360 |
400 |
8-M12 |
350 |
420 |
460 |
30 |
12-ф18 |
46219 |
146 |
|
DJ-70A B |
CD130B7·7 |
720 |
447 |
370 |
20 |
24 |
A6
B5 |
6 |
A316(320)
B315 |
360 |
400 |
A8-M12
B8-M16 |
350 |
420 |
460 |
30 |
12-ф18 |
46219 |
146 |
|
DJ-80A B |
CD130B7·8 |
785 |
495 |
405 |
25 |
28 |
A6
B5 |
8 |
A345
B360 |
A390
B410 |
A430
B460 |
A8-M16
B8-M20 |
380 |
455 |
495 |
30 |
12-ф18 |
46222 |
189 |
|
DJ-90A |
CD130B7·9 |
805 |
519 |
405 |
25 |
28 |
7 |
8 |
400 |
450 |
490 |
12-M16 |
430 |
510 |
555 |
30 |
12-ф23 |
46224 |
233 |
|
DJ-100A B |
CD130B7·10 |
820 |
535 |
410 |
25 |
28 |
A9
B5 |
10 |
A455(460)
B470 |
520 |
580 |
12-M20 |
480 |
560 |
600 |
22.5 |
16-ф23 |
46228 |
290 |
軸連接尺寸
|
機架代號 |
h1 |
h2 |
h3 |
h4 |
h5 |
d0 |
d1 |
d2 |
M2 |
d3 |
d4 |
R1 |
t1 |
b1 |
t2 |
b2 |
|
DJ-30A B |
103 |
3 |
13 |
36 |
22 |
30 |
32 |
32.8 |
35×1.5 |
35 |
40 |
1 |
31 |
6 |
300 -0.2 |
100 -0.036 |
|
DJ-35 A |
113 |
3 |
13 |
40 |
22 |
35 |
42 |
42.8 |
45×1.5 |
45 |
50 |
1 |
41 |
6 |
39.50 -0.2 |
140 -0.043 |
|
DJ-40 B |
113 |
3 |
13 |
40 |
22 |
40 |
42 |
42.8 |
45×1.5 |
45 |
50 |
1 |
41 |
6 |
39.50 -0.2 |
140 -0.043 |
|
DJ-45 A |
113 |
3 |
15 |
45 |
28 |
45 |
47 |
47.8 |
50×1.5 |
50 |
65 |
1 |
46 |
8 |
44.50 -0.2 |
140 -0.043 |
|
DJ-55A B |
118 |
4 |
15 |
50 |
28 |
55 |
57 |
57 |
60×2 |
60 |
65 |
1 |
56 |
8 |
530 -0.2 |
180 -0.043 |
|
DJ-65 A |
143 |
4 |
18 |
56 |
32 |
65 |
71 |
72 |
75×2 |
75 |
80 |
1 |
69 |
10 |
67.50 -0.2 |
200 -0.052 |
|
DJ-70A B |
143 |
4 |
18 |
56 |
32 |
70 |
71 |
72 |
75×2 |
75 |
80 |
1 |
69 |
10 |
67.50 -0.2 |
200 -0.052 |
|
DJ-80A B |
163 |
4 |
18 |
70 |
32 |
80 |
81 |
82 |
85×2 |
85 |
90 |
1.5 |
79 |
10 |
760 -0.2 |
220 -0.052 |
|
DJ-90A |
168 |
4 |
20 |
80 |
36 |
90 |
91 |
92 |
95×2 |
95 |
110 |
1.5 |
89 |
12 |
860 -0.2 |
250 -0.052 |
|
DJ-100A B |
178 |
4 |
24 |
90 |
42 |
100 |
111 |
112 |
115×2 |
115 |
125 |
2 |
109 |
14 |
1040 -0.2 |
320 -0.062 | |
|
|