| YSCL、YLZC系列冷卻塔專用低噪聲三相異步電動機在線購買 |
|
| 本產品詳細參數 |
 |
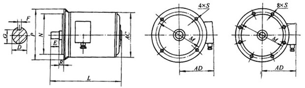
YSCL、YLZC系列冷卻塔專用低噪聲三相異步電動機外形及安裝尺寸 |
 |
| |
詳細介紹: |
發布時間:2007/8/16 9:27:37 |
|
| |
表3 (單位:mm)
|
中心高 |
極數 |
B |
C |
C1 |
D |
E |
F |
G |
S |
AD |
AC |
L |
L1 |
|
短軸 |
長軸 |
|
YLZC100M |
6、8 |
110 |
180 |
140 |
28 |
60 |
8 |
24 |
M10 |
180 |
210 |
430 |
390 |
|
YLZC100L |
455 |
415 |
|
YLZC132S |
6、8、12 |
150 |
174 |
224 |
164 |
38 |
80 |
10 |
33 |
M12 |
210 |
275 |
475 |
525 |
465 |
|
YLZC132M |
193 |
243 |
183 |
515 |
565 |
505 |
|
YLZC160M |
6、12、16 |
260 |
300 |
225 |
42 |
100 |
12 |
37 |
240 |
325 |
590 |
630 |
555 |
|
YLZC160L |
260 |
300 |
235 |
590 |
630 |
575 |
表4 (單位:mm)
|
型號 |
極數 |
A |
B |
B1 |
E |
AD |
G |
F |
D |
L |
L1 |
AC |
S |
|
長州 |
短軸 |
|
YSCL132S |
6、8
12 |
150 |
303.5 |
213.5 |
160 |
80 |
210 |
33 |
10 |
38 |
535 |
475 |
275 |
M12 |
|
YSCL132M |
322.5 |
262.5 |
179 |
575 |
513 |
|
YSCL160M |
6、8、12、16 |
377 |
— |
211 |
110 |
265 |
37 |
12 |
42 |
668 |
— |
335 |
M16 |
|
YSCL160L |
399 |
233 |
712 |
|
YSCL180M |
400.5 |
236 |
285 |
42.5 |
14 |
48 |
— |
370 |
M20 |
|
YSCL180L |
419.5 |
255 |
— |
|
YSCL200L |
6、8、12、16、20 |
446 |
280.5 |
315 |
49 |
16 |
55 |
— |
410 |
M24 |
圖3 YSCL系列外形尺寸圖(機座不帶底腳,端蓋上有凸緣)(見表5)

表5 (單位:mm)
|
型號 |
凸緣號 |
極數 |
P |
N |
E |
R |
M |
D |
G |
F |
L |
AD |
S |
凸緣孔數 |
AC |
|
YSCL132S |
FF325 |
4、6、8、12 |
φ350 |
φ278 |
40 |
20 |
φ325 |
φ38
|
33 |
10 |
433
|
210 |
13.5 |
4 |
275 |
|
YSCL132M |
|
YSCL160M |
4、6、8、12 |
φ42 |
37 |
12 |
495 |
365 |
335 |
|
YSCL160L |
545 |
|
YSCL180M |
FF350 |
φ400 |
φ300 |
110 |
0 |
φ350 |
φ48 |
42.5 |
14 |
575 |
285 |
16 |
375 |
|
YSCL180L |
615 |
|
YSCL180L |
FF510 |
4 |
φ550 |
φ455 |
70 |
20 |
φ510 |
φ55 |
49 |
16 |
595 |
285 |
8 |
|
YSCL200L |
4、6、8、12 |
655 |
315 |
410 |
|
|
|
|