 |
ZQ250、ZQH250、ZQSH250、ZQ350、ZQH350、ZQSH350、ZQ400、ZQH400、ZQSH400、ZQ500、ZQH500、ZQSH500、ZQ650、ZQH650、ZQSH650、ZQ850、ZQH850、ZQSH850、ZQ1000、ZQH1000、ZQSH1000系列齒輪減速機軸端尺寸(C型、F型) |
 |
| |
詳細介紹: |
發布時間:2006/4/22 13:41:52 |
|
| |
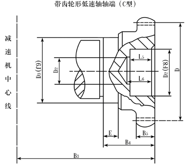
ZQ、ZQH、ZQSH系列齒輪減速機軸端尺寸(C型、F型)


|
型號 |
低速軸軸端 |
|
F型 |
|
D |
D1 |
D2 |
D3 |
Dd |
L5 |
L6 |
L7 |
E |
B3 |
B4 |
B5 |
B6 |
b |
|
ZQ
ZQH
ZQSH |
250 |
100 |
50 |
25 |
40 |
85 |
25 |
50 |
55 |
27 |
140 |
47 |
25 |
11 |
25 |
|
350 |
120 |
60 |
40 |
45 |
85 |
36 |
66 |
71 |
22 |
186 |
58 |
36 |
14 |
30 |
|
400 |
150 |
60 |
40 |
45 |
100 |
45 |
75 |
80 |
22 |
205 |
67 |
45 |
17 |
35 |
|
500 |
200 |
80 |
40 |
50 |
115 |
55 |
95 |
100 |
22 |
235 |
77 |
55 |
22 |
50 |
|
650 |
250 |
110 |
40 |
70 |
145 |
60 |
105 |
115 |
37.5 |
300 |
97.5 |
70 |
27 |
60 |
|
750 |
275 |
110 |
40 |
75 |
145 |
70 |
120 |
130 |
36 |
330 |
106 |
80 |
27 |
75 |
|
850 |
300 |
120 |
60 |
75 |
165 |
90 |
140 |
150 |
37.5 |
390 |
127.5 |
90 |
27 |
75 |
|
1000 |
325 |
130 |
60 |
80 |
205 |
80 |
140 |
150 |
29 |
415 |
109 |
80 |
32 |
80 |
|
型號 |
低速軸軸端 |
|
C型 |
|
mm |
Z |
D |
D1 |
D2 |
D3 |
B3 |
B4 |
B5 |
E |
L5 |
L6 |
|
ZQ
ZQH
ZQSH |
250 |
3 |
40 |
120 |
65 |
40 |
85 |
164.5 |
66.5 |
20 |
27 |
35 |
40 |
|
350 |
3 |
48 |
144 |
65 |
40 |
90 |
202 |
74 |
25 |
22 |
35 |
40 |
|
400 |
3 |
56 |
168 |
80 |
50 |
100 |
220 |
82 |
25 |
22 |
40 |
50 |
|
500 |
4 |
56 |
224 |
100 |
65 |
115 |
256 |
98 |
35 |
22 |
45 |
58 |
|
650 |
6 |
56 |
336 |
140 |
85 |
145 |
330 |
127.5 |
40 |
37.5 |
55 |
68 |
|
750 |
6 |
56 |
336 |
140 |
85 |
145 |
350 |
126 |
40 |
36 |
55 |
68 |
|
850 |
8 |
54 |
432 |
170 |
100 |
165 |
388 |
127.5 |
50 |
37.5 |
65 |
80 |
|
1000 |
10 |
48 |
480 |
180 |
100 |
205 |
430 |
126 |
60 |
31 |
75 |
100 | |
|
|