 |
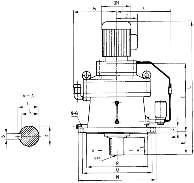
二級立式直聯型外形安裝尺寸圖表FLED型8165/09~8255/19 |
 |
| |
詳細介紹: |
發布時間:2007/6/8 13:22:00 |
|
| |
二級立式直聯型外形安裝尺寸圖表
FLED型8165/09~8255/19
|
機型號 |
尺寸 |
|
Z |
E |
F |
R |
M |
Q |
P |
N-G |
K |
W |
輸出端 |
|
D |
L |
B |
t |
h |
s×m |
|
8165/09 |
285 |
89 |
20 |
4 |
340 |
310 |
270 |
6-φ |
217 |
200 |
60 |
80 |
18 |
53 |
64 |
M10×29 |
|
8165/10 |
299 |
|
8165/11 |
300 |
|
8175/09 |
324 |
94 |
22 |
5 |
400 |
360 |
316 |
8-φ14 |
222 |
225 |
70 |
84 |
20 |
62.5 |
74.5 |
M12×24 |
|
8175/10 |
338 |
|
8175/11 |
342 |
|
8185/10 |
364 |
110 |
22 |
5 |
430 |
390 |
345 |
8-φ18 |
237 |
240 |
80 |
100 |
22 |
71 |
85 |
M12×24 |
|
8185/13 |
386 |
|
8195/11 |
411 |
145 |
30 |
6 |
490 |
450 |
400 |
12-φ18 |
360 |
200 |
95 |
125 |
25 |
86 |
100 |
M20×34 |
|
8195/13 |
427 |
|
8205/11 |
398 |
204 |
30 |
5 |
455 |
405 |
355 |
8-φ22 |
376 |
287 |
100 |
165 |
28 |
100 |
106 |
M20×34 |
|
8205/13 |
424 |
|
8215/13 |
447 |
203 |
35 |
7 |
490 |
440 |
390 |
8-φ24 |
400 |
290 |
110 |
165 |
28 |
106 |
116 |
M20×34 |
|
8215/16 |
472 |
|
8225/13 |
482 |
210 |
35 |
10 |
535 |
475 |
415 |
8-φ27 |
400 |
326 |
120 |
165 |
32 |
116 |
127 |
M20×34 |
|
8225/17 |
526 |
|
8235/16 |
529 |
250 |
40 |
10 |
570 |
510 |
450 |
8-φ27 |
413 |
344 |
130 |
200 |
32 |
127 |
137 |
M24×41 |
|
8235/18 |
551 |
|
8245/16 |
566 |
250 |
40 |
10 |
635 |
560 |
485 |
8-φ33 |
420 |
365 |
140 |
200 |
36 |
137 |
148 |
M24×41 |
|
8245/18 |
587 |
|
8255/17 |
661 |
295 |
45 |
10 |
685 |
610 |
535 |
8-φ33 |
432 |
425 |
160 |
240 |
40 |
148 |
169 |
M30×49 |
|
8255/19 |
684 |
注:“K”尺寸是減速機中心線到示油器的距離,該尺寸為油泵強制潤滑時尺寸,其它潤滑方式無“K”尺寸。
二級立式直聯型外形安裝尺寸圖表
|
功率 |
尺寸 |
型號 |
|
8165/09 |
8165/10 |
8165/11 |
8175/09 |
8175/10 |
8175/11 |
8185/10 |
8185/13 |
|
0.18 |
DM |
130 |
|
|
130 |
|
|
|
|
|
J |
100 |
|
|
100 |
|
|
|
|
|
L |
624 |
|
|
670 |
|
|
|
|
|
重量 |
|
|
|
|
|
|
|
|
|
0.25 |
DM |
140 |
|
|
140 |
|
|
|
|
|
J |
125 |
|
|
125 |
|
|
|
|
|
L |
624 |
|
|
624 |
|
|
|
|
|
重量 |
|
|
|
|
|
|
|
|
|
0.37 |
DM |
140 |
|
|
140 |
|
|
140 |
|
|
J |
125 |
|
|
125 |
|
|
125 |
|
|
L |
624 |
|
|
670 |
|
|
707 |
|
|
重量 |
|
|
|
|
|
|
|
|
|
0.55 |
DM |
175 |
175 |
|
175 |
|
|
175 |
|
|
J |
160 |
160 |
|
160 |
|
|
160 |
|
|
L |
655 |
655 |
|
701 |
|
|
756 |
|
|
重量 |
|
|
|
|
|
|
|
|
|
0.75 |
DM |
175 |
175 |
|
175 |
|
|
175 |
|
|
J |
160 |
160 |
|
160 |
|
|
160 |
|
|
L |
655 |
655 |
|
701 |
|
|
756 |
|
|
重量 |
|
|
|
|
|
|
|
|
|
1.1 |
DM |
|
195 |
195 |
|
195 |
|
195 |
|
|
J |
|
170 |
170 |
|
170 |
|
170 |
|
|
L |
|
681 |
681 |
|
726 |
|
768 |
|
|
重量 |
|
|
|
|
|
|
|
|
|
1.5 |
DM |
|
195 |
|
|
195 |
|
195 |
|
|
J |
|
170 |
|
|
170 |
|
170 |
|
|
L |
|
705 |
|
|
750 |
|
792 |
|
|
重量 |
|
|
|
|
|
|
|
|
|
2.2 |
DM |
|
215 |
215 |
|
215 |
215 |
215 |
|
|
J |
|
185 |
185 |
|
185 |
185 |
185 |
|
|
L |
|
745 |
747 |
|
790 |
794 |
823 |
|
|
重量 |
|
|
|
|
|
|
|
|
|
3.0 |
DM |
|
|
215 |
|
|
215 |
|
215 |
|
J |
|
|
185 |
|
|
185 |
|
185 |
|
L |
|
|
747 |
|
|
794 |
|
854 |
|
重量 |
|
|
|
|
|
|
|
|
|
4 |
DM |
|
|
230 |
|
|
230 |
|
230 |
|
J |
|
|
190 |
|
|
190 |
|
190 |
|
L |
|
|
764 |
|
|
811 |
|
882 |
|
重量 |
|
|
|
|
|
|
|
|
|
5.5 |
DM |
|
|
|
|
|
270 |
|
270 |
|
J |
|
|
|
|
|
210 |
|
210 |
|
L |
|
|
|
|
|
874 |
|
934 |
|
重量 |
|
|
|
|
|
|
|
|
|
7.5 |
DM |
|
|
|
|
|
|
|
270 |
|
J |
|
|
|
|
|
|
|
210 |
|
L |
|
|
|
|
|
|
|
972 |
|
重量 |
|
|
|
|
|
|
|
|
二級立式直聯型外形安裝尺寸圖表
|
功率 |
尺寸 |
型號 |
|
8195
/11 |
8195
/13 |
8205
/11 |
8205
/13 |
8215
/13 |
8215
/16 |
8225
/13 |
8225
/17 |
8235
/16 |
8235
/18 |
8245
/16 |
8245
/18 |
8255
/17 |
8255
/19 |
|
0.75 |
DM |
175 |
|
175 |
|
|
|
|
|
|
|
|
|
|
|
|
J |
160 |
|
160 |
|
|
|
|
|
|
|
|
|
|
|
|
L |
838 |
|
879 |
|
|
|
|
|
|
|
|
|
|
|
|
重量 |
|
|
|
|
|
|
|
|
|
|
|
|
|
|
|
1.1 |
DM |
195 |
|
195 |
|
|
|
|
|
|
|
|
|
|
|
|
J |
170 |
|
170 |
|
|
|
|
|
|
|
|
|
|
|
|
L |
850 |
|
891 |
|
|
|
|
|
|
|
|
|
|
|
|
重量 |
|
|
|
|
|
|
|
|
|
|
|
|
|
|
|
1.5 |
DM |
195 |
|
195 |
|
195 |
|
195 |
|
|
|
|
|
|
|
|
J |
170 |
|
170 |
|
170 |
|
170 |
|
|
|
|
|
|
|
|
L |
874 |
|
915 |
|
968 |
|
1010 |
|
|
|
|
|
|
|
|
重量 |
|
|
|
|
|
|
|
|
|
|
|
|
|
|
,
|
2.2, DIV> |
DM |
215 |
215 |
|
215 |
215 |
|
215 |
|
215 |
|
215 |
|
|
|
|
J |
185 |
185 |
|
185 |
185 |
|
185 |
|
185 |
|
185 |
|
|
|
|
L |
914 |
930 |
|
982 |
1008 |
|
1050 |
|
1136 |
|
1174 |
|
|
|
|
重量 |
|
|
|
|
|
|
|
|
|
|
|
|
|
|
|
3.0 |
DM |
|
|
|
215 |
230 |
|
215 |
|
|
|
215 |
|
215 |
|
|
J |
|
|
|
185 |
190 |
|
185 |
|
|
|
185 |
|
185 |
|
|
L |
|
|
|
982 |
1008 |
|
1050 |
|
|
|
1174 |
|
1361 |
|
|
重量 |
|
|
|
|
|
|
|
|
|
|
|
|
|
|
|
4 |
DM |
230 |
230 |
|
230 |
230 |
|
230 |
|
230 |
|
230 |
|
230 |
|
|
J |
190 |
190 |
|
190 |
190 |
|
190 |
|
190 |
|
190 |
|
190 |
|
|
L |
931 |
947 |
|
999 |
1025 |
|
1067 |
|
1153 |
|
1191 |
|
1331 |
|
|
重量 |
|
|
|
|
|
|
|
|
|
|
|
|
|
|
|
5.5 |
DM |
270 |
270 |
|
270 |
270 |
|
270 |
|
270 |
|
270 |
|
270 |
|
|
J |
210 |
210 |
|
210 |
210 |
|
210 |
|
210 |
|
210 |
|
210 |
|
|
L |
994 |
1010 |
|
1062 |
1088 |
|
1130 |
|
1216 |
|
1254 |
|
1394 |
|
|
重量 |
|
|
|
|
|
|
|
|
|
|
|
|
|
|
|
7.5 |
DM |
|
270 |
|
270 |
270 |
270 |
270 |
|
270 |
|
270 |
|
270 |
|
|
J |
|
210 |
|
210 |
210 |
210 |
210 |
|
210 |
|
210 |
|
210 |
|
|
L |
|
1048 |
|
1100 |
1126 |
1151 |
1168 |
|
1254 |
|
1292 |
|
1432 |
|
|
重量 |
|
|
|
|
|
|
|
|
|
|
|
|
|
|
|
11 |
DM |
|
|
|
|
|
325 |
|
325 |
325 |
|
325 |
|
325 |
|
|
J |
|
|
|
|
|
255 |
|
255 |
255 |
|
255 |
|
255 |
|
|
L |
|
|
|
|
|
1187 |
|
1247 |
1290 |
|
1328 |
|
1468 |
|
|
重量 |
|
|
|
|
|
|
|
|
|
|
|
|
|
|
|
15 |
DM |
|
|
|
|
|
|
|
325 |
325 |
|
325 |
325 |
325 |
|
|
J |
|
|
|
|
|
|
|
255 |
255 |
|
255 |
255 |
255 |
|
|
L |
|
|
|
|
|
|
|
1292 |
1335 |
|
1373 |
1394 |
1531 |
|
|
重量 |
|
|
|
|
|
|
|
|
|
|
|
|
|
|
|
18.5 |
DM |
|
|
|
|
|
|
|
400 |
|
400 |
|
400 |
400 |
|
|
J |
|
|
|
|
|
|
|
310 |
|
310 |
|
310 |
310 |
|
|
L |
|
|
|
|
|
|
|
1402 |
|
1467 |
|
1504 |
1623 |
|
|
重量 |
|
|
|
|
|
|
|
|
|
|
|
|
|
|
|
22 |
DM |
|
|
|
|
|
|
|
|
|
400 |
|
400 |
400 |
|
|
J |
|
|
|
|
|
|
|
|
|
310 |
|
310 |
310 |
|
|
L |
|
|
|
|
|
|
|
|
|
1467 |
|
1504 |
1323 |
|
|
重量 |
|
|
|
|
|
|
|
|
|
|
|
|
|
|
|
30 |
DM |
|
|
|
|
|
|
|
|
|
|
|
|
|
450 |
|
J |
|
|
|
|
|
|
|
|
|
|
|
|
|
345 |
|
L |
|
|
|
|
|
|
|
|
|
|
|
|
|
1691 |
|
重量 |
|
|
|
|
|
|
|
|
|
|
|
|
|
|
|
37 |
DM |
|
|
|
|
|
|
|
|
|
|
|
|
|
|
|
J |
|
|
|
|
|
|
|
|
|
|
|
|
|
|
|
L |
|
|
|
|
|
|
|
|
|
|
|
|
|
|
|
重量 |
|
|
|
|
|
|
|
|
|
|
|
|
|
|
注:所用電動機為Y系列尺寸(4極電機) |
|
|