 |
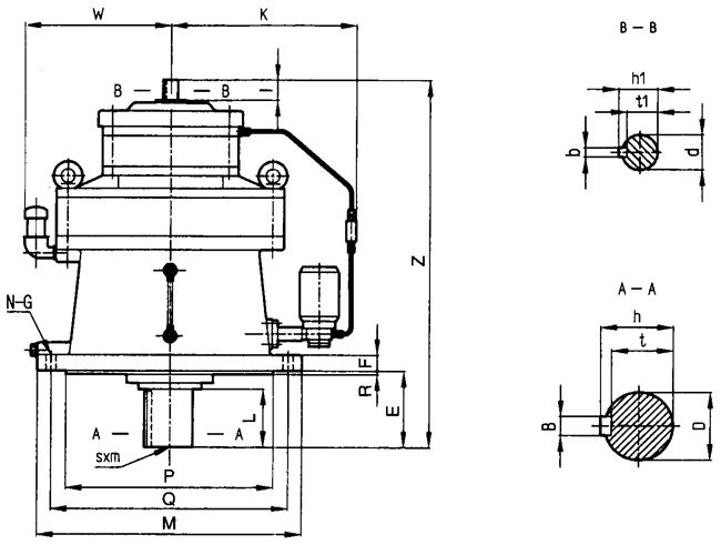
二級立式雙軸型外形安裝尺寸圖表FLE型8165/09~8255/19 |
 |
| |
詳細介紹: |
發布時間:2007/6/8 13:28:41 |
|
| |
二級立式雙軸型外形安裝尺寸圖表
FLE型8165/09~8255/19

|
機型號 |
尺寸 |
|
Z |
R |
F |
E |
N-G |
M |
Q |
P |
K |
W |
輸入端 |
輸出端 |
重量 |
|
d |
l |
b |
t1 |
h1 |
D |
L |
B |
h |
t |
s×m |
|
8165/09 |
433 |
4 |
20 |
89 |
6-φ11 |
340 |
310 |
270 |
217 |
200 |
15 |
25 |
5 |
12 |
17 |
60 |
80 |
18 |
64 |
53 |
M10×18 |
86 |
|
8165/10 |
439 |
4 |
20 |
89 |
6-φ11 |
340 |
310 |
270 |
217 |
200 |
15 |
25 |
5 |
12 |
17 |
60 |
80 |
18 |
64 |
53 |
M10×18 |
88 |
|
8165/11 |
462 |
4 |
20 |
89 |
6-φ11 |
340 |
310 |
270 |
217 |
200 |
18 |
35 |
6 |
14.5 |
20.5 |
60 |
80 |
18 |
64 |
53 |
M10×18 |
94 |
|
8175/09 |
478 |
5 |
22 |
94 |
8-φ14 |
400 |
360 |
316 |
222 |
225 |
15 |
25 |
5 |
12 |
17 |
70 |
84 |
20 |
74.5 |
62.5 |
M12×24 |
120 |
|
8175/10 |
484 |
5 |
22 |
94 |
8-φ14 |
400 |
360 |
316 |
222 |
225 |
15 |
25 |
5 |
12 |
17 |
70 |
84 |
20 |
74.5 |
62.5 |
M12×24 |
125 |
|
8175/11 |
509 |
5 |
22 |
94 |
8-φ14 |
400 |
360 |
316 |
222 |
225 |
18 |
35 |
6 |
14.5 |
20.5 |
70 |
84 |
20 |
74.5 |
62.5 |
M12×24 |
130 |
|
8185/10 |
526 |
5 |
22 |
110 |
8-φ18 |
430 |
390 |
345 |
237 |
240 |
15 |
25 |
5 |
12 |
17 |
80 |
100 |
22 |
85 |
71 |
M12×24 |
166 |
|
8185/13 |
577 |
5 |
22 |
110 |
8-φ18 |
430 |
390 |
345 |
237 |
240 |
22 |
40 |
6 |
18.5 |
24.5 |
80 |
100 |
22 |
85 |
71 |
M12×24 |
185 |
|
8198/11 |
629 |
6 |
30 |
145 |
12-φ18 |
490 |
450 |
400 |
360 |
200 |
18 |
35 |
6 |
14.5 |
20.5 |
95 |
125 |
25 |
100 |
86 |
M20×34 |
240 |
|
8195/13 |
653 |
6 |
30 |
145 |
12-φ18 |
490 |
450 |
400 |
36 |
200 |
22 |
40 |
6 |
18.5 |
24.5 |
95 |
125 |
25 |
100 |
86 |
M20×34 |
250 |
|
8205/11 |
670 |
5 |
30 |
204 |
8-φ22 |
455 |
405 |
355 |
376 |
287 |
18 |
35 |
6 |
14.5 |
20.5 |
100 |
165 |
28 |
106 |
90 |
M20×34 |
261 |
|
8205/13 |
705 |
22 |
40 |
6 |
18.5 |
24.5 |
275 |
|
8215/13 |
731 |
7 |
35 |
203 |
8-φ24 |
490 |
440 |
390 |
400 |
290 |
22 |
40 |
6 |
18.5 |
24.5 |
110 |
165 |
28 |
116 |
100 |
M20×34 |
355 |
|
8215/16 |
780 |
30 |
45 |
8 |
26 |
33 |
375 |
|
8225/13 |
773 |
10 |
35 |
210 |
8-φ27 |
535 |
475 |
415 |
400 |
326 |
22 |
40 |
6 |
18.5 |
24.5 |
120 |
165 |
32 |
127 |
109 |
M20×34 |
430 |
|
8225/17 |
860 |
35 |
55 |
10 |
30 |
38 |
475 |
|
8235/16 |
883 |
10 |
40 |
250 |
8-φ27 |
570 |
510 |
450 |
413 |
344 |
30 |
45 |
8 |
26 |
33 |
130 |
200 |
32 |
137 |
119 |
M24×41 |
550 |
|
8235/18 |
938 |
40 |
65 |
12 |
35 |
43 |
583 |
|
8245/16 |
921 |
10 |
40 |
250 |
8-φ33 |
635 |
560 |
485 |
420 |
365 |
30 |
45 |
8 |
26 |
33 |
140 |
200 |
36 |
148 |
128 |
M24×41 |
655 |
|
8245/18 |
975 |
40 |
65 |
12 |
35 |
43 |
688 |
|
8255/17 |
1081 |
10 |
40 |
295 |
8-φ33 |
685 |
610 |
535 |
432 |
435 |
35 |
55 |
10 |
30 |
38 |
160 |
240 |
40 |
169 |
147 |
M30×49 |
1012 |
|
8255/19 |
1133 |
45 |
70 |
14 |
39.5 |
48.5 |
1087 |
注:“K”尺寸是減速機中心線到示油器的距離,該尺寸為油泵強制潤滑時尺寸,其它潤滑方式無“K”尺寸。
|
|
|