 |
DY-MEB型單面嚙合單面滑動聯軸機外形及安裝尺寸 |
 |
|
詳細介紹: |
發布時間:2008/8/2 9:59:07 |
|
|
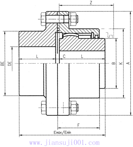
單面嚙合單面滑動聯軸器
此型聯器是將DY-EB型單面嚙合聯軸器之內齒外殼加長。適用于被動機機袛有一處徑向軸承支點之連接,且較小量之軸向位移。
DY-MEB “La”單面滑行最大距離
“Z”裝配時所需之最小距離
型號 |
扭力kg-M |
最高回轉數
RPM |
最大孔徑
mm |
最小孔徑mm |
重量
kg |
潤滑油重量
g |
尺 寸 mm |
撓性 |
剛性 |
L1 |
L2 |
C |
A |
B |
F |
K |
La |
Emax |
Emin |
BE |
Z |
75 |
410 |
4000 |
75 |
90 |
37 |
20 |
84 |
100 |
80 |
12 |
184 |
105 |
85 |
140 |
30 |
222 |
192 |
140 |
151 |
90 |
670 |
4000 |
90 |
105 |
37 |
27 |
136 |
100 |
90 |
12 |
206 |
125 |
90 |
160 |
30 |
232 |
202 |
160 |
155 |
105 |
980 |
3750 |
105 |
115 |
37 |
39 |
179 |
100 |
100 |
12 |
221 |
140 |
90 |
175 |
30 |
242 |
212 |
175 |
151 |
115 |
1420 |
3300 |
115 |
130 |
42 |
53 |
262 |
112 |
112 |
12 |
244 |
155 |
100 |
188 |
40 |
276 |
236 |
188 |
159 |
135 |
2100 |
3000 |
135 |
150 |
42 |
68 |
367 |
125 |
125 |
12 |
266 |
180 |
105 |
214 |
40 |
302 |
262 |
214 |
172 |
150 |
3100 |
2650 |
150 |
165 |
47 |
99 |
472 |
140 |
140 |
12 |
292 |
200 |
110 |
240 |
40 |
332 |
292 |
240 |
198 |
175 |
4550 |
2350 |
175 |
175 |
115 |
151 |
756 |
160 |
160 |
12 |
331 |
235 |
110 |
285 |
40 |
372 |
332 |
250 |
220 |
|
|
|